豆豆网

 找回密码
 立即注册

QQ登录

只需一步,快速开始

查看: 649|回复: 0

一份4层市级现代风格幼儿园教学楼建筑设计CAD施工图纸(两栋教学楼)

[复制链接]

0

主题

0

帖子

1096

积分

超级版主

Rank: 8Rank: 8

积分
1096
发表于 2020-2-10 16:28:08 | 显示全部楼层 |阅读模式

该帖子包含附件可供参考学习和下载,您可以 搜索 更多您想要的资源


  • 建筑类别:幼儿园

  • 图纸设计深度:施工图

  • 项目所在地:四川

  • 图纸设计流派:现代

  • 图纸设计格式:天正建筑CAD 7.0,CAD2000

  • 参考图纸:30张

  • 建筑高度:18.6m

  • 建筑地上层数:4层

  • 地下室功能:车库

附件详情

建筑结构:采用框架构。
附件设计说明:建筑共四层,一至三层为幼儿教学用房,四层为教师办公用房。
该资料包含:设计说明,各层平面图,立面图,剖面图,大样图,节点图等。


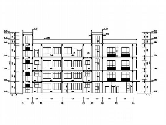
4层市级现代风格幼儿园教学楼建筑剖面图

4层市级现代风格幼儿园教学楼建筑平面图

4层市级现代风格幼儿园教学楼建筑立面图

4层市级现代风格幼儿园教学楼建筑立面图

4层市级现代风格幼儿园教学楼建筑立面图

4层市级现代风格幼儿园教学楼建筑立面图

4层市级现代风格幼儿园教学楼建筑平面图

4层市级现代风格幼儿园教学楼建筑平面图

4层市级现代风格幼儿园教学楼建筑平面图

4层市级现代风格幼儿园教学楼建筑局部大样图

4层市级现代风格幼儿园教学楼建筑局部节点图

4层市级现代风格幼儿园教学楼建筑局部节点图

总缩略图

幼儿园建筑设计施工 - 1
第 1 张图
幼儿园建筑设计施工 - 2
第 2 张图
幼儿园建筑设计施工 - 3
第 3 张图
幼儿园建筑设计施工 - 4
第 4 张图
幼儿园建筑设计施工 - 5
第 5 张图
幼儿园建筑设计施工 - 6
第 6 张图
幼儿园建筑设计施工 - 7
第 7 张图
幼儿园建筑设计施工 - 8
第 8 张图
以上是部分图纸截图,有些图框没有放大后再截图,可能截图里不清晰或者看不到内容,您可以在下载后查看具体内容

温馨提示:该资料由网友于2020-2-10 16:28:08上传分享,您可以下载该资料进行学习和参考,如有侵权内容或者违法行为,请及时联系站长删除,如有疑问,您可以在建筑施工专区发帖交流相关知识。

附件2099v11edsw02fedfccsffesc2.zip

3.13 MB

下载  售价: 100 积分    赚积分

幼儿园建筑设计施工相关帖子

回复

使用道具 举报

您需要登录后才可以回帖 登录 | 立即注册

本版积分规则

QQ|联系我们|豆豆网 ( 苏ICP备20004746号-1 )

GMT+8, 2025-12-27 22:40 , Processed in 0.020643 second(s), 27 queries .

本站所有内容均由网友自主分享,如有侵权内容或者违法行为,请及时联系站长删除,本站将根据实际情况进行积分奖励!请查看:免责声明

快速回复 返回顶部 返回列表