豆豆网

 找回密码
 立即注册

QQ登录

只需一步,快速开始

查看: 645|回复: 0

一份地震危房改造工程27层框支剪力墙结构CAD施工图纸

[复制链接]

0

主题

0

帖子

1350

积分

超级版主

Rank: 8Rank: 8

积分
1350
发表于 2020-2-10 17:04:42 | 显示全部楼层 |阅读模式

该帖子包含附件可供参考学习和下载,您可以 搜索 更多您想要的资源


  • 建筑类别:住宅
  • 建筑高度类型:高层建筑
  • 建筑地上层数:27层
  • 建筑地下层数:1层
  • 图纸设计深度:施工图
  • 民用建筑设计使用年限:50年
  • 建筑设计结构形式:钢筋混凝土结构
  • 钢筋混凝土结构:框架剪力墙
  • 基础形式 :桩基础
  • 结构安全等级:二级
  • 抗震设防烈度:抗震不设防
  • 风压:0.35kN/平方米
  • 参考图纸:60张

附件详情

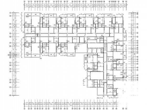
结构设计总说明、基础桩位平面图、积水坑和截水沟大样、墙柱配筋平面图、墙柱配筋图、墙柱大样图、梁配筋平面图、板配筋图、板结构及模板平面图、标准层模板平面图、标准层板结构平面图共60张图纸。

基础桩位平面图

墙柱配筋平面图

模板及板配筋图

模板平面图

梁配筋图

承台节点

楼梯节点

剪力墙竖向钢筋连接构造

板配筋图

框支结构改造 - 1
第 1 张图
框支结构改造 - 2
第 2 张图
框支结构改造 - 3
第 3 张图
框支结构改造 - 4
第 4 张图
框支结构改造 - 5
第 5 张图
框支结构改造 - 6
第 6 张图
以上是部分图纸截图,有些图框没有放大后再截图,可能截图里不清晰或者看不到内容,您可以在下载后查看具体内容

温馨提示:该资料由网友于2020-2-10 17:04:42上传分享,您可以下载该资料进行学习和参考,如有侵权内容或者违法行为,请及时联系站长删除,如有疑问,您可以在建筑施工专区发帖交流相关知识。

附件2099v11edfcc2swcc0cfsec122.zip

6.85 MB

下载  售价: 100 积分    赚积分

框支结构改造相关帖子

回复

使用道具 举报

您需要登录后才可以回帖 登录 | 立即注册

本版积分规则

QQ|联系我们|豆豆网 ( 苏ICP备20004746号-1 )

GMT+8, 2025-11-26 02:55 , Processed in 0.015960 second(s), 27 queries .

本站所有内容均由网友自主分享,如有侵权内容或者违法行为,请及时联系站长删除,本站将根据实际情况进行积分奖励!请查看:免责声明

快速回复 返回顶部 返回列表