豆豆网

 找回密码
 立即注册

QQ登录

只需一步,快速开始

查看: 2279|回复: 0

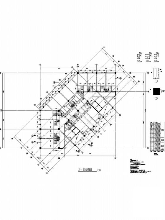
一份15层框架剪力墙带1层地下室商住楼结构CAD施工图纸(人工挖孔灌注桩)

[复制链接]

0

主题

0

帖子

1642

积分

超级版主

Rank: 8Rank: 8

积分
1642
发表于 2020-2-10 20:55:24 | 显示全部楼层 |阅读模式

该帖子包含附件可供参考学习和下载,您可以 搜索 更多您想要的资源


  • 建筑类别:住宅,商业
  • 建筑高度类型:高层建筑
  • 建筑地上层数:15层
  • 建筑地下层数:1层
  • 图纸设计深度:施工图
  • 民用建筑设计使用年限:50年
  • 建筑设计结构形式:钢筋混凝土结构
  • 钢筋混凝土结构:框架剪力墙
  • 基础形式 :桩基础
  • 结构安全等级:二级
  • 抗震设防烈度:抗震不设防
  • 风压:0.40kN/平方米
  • 雪压:0.35kN/平方米
  • 参考图纸:63张

附件详情

结构设计总说明、 人工挖孔灌注桩设计说明、桩位平面布置图、承台 平面布置图 、承台详图、地下室底板结构布置图、地下室底板板配筋图、结构模板平面图、板配筋平面图、梁配筋图、模板图、机房顶层结构图、钟楼层结构图、楼梯详图、汽车坡道结构图、竖向结构平面图、墙身大样图、 楼梯详图 共63张图纸。

板配筋平面图

桩位平面布置图

结构模板平面图

模板图

承台节点

集水井侧靠地梁

楼梯梁节点

墙身大样图

梁配筋图

第 1 张图
第 1 张图
第 2 张图
第 2 张图
第 3 张图
第 3 张图
第 4 张图
第 4 张图
第 5 张图
第 5 张图
第 6 张图
第 6 张图
以上是部分图纸截图,有些图框没有放大后再截图,可能截图里不清晰或者看不到内容,您可以在下载后查看具体内容

温馨提示:该资料由网友于2020-2-10 20:55:24上传分享,您可以下载该资料进行学习和参考,如有侵权内容或者违法行为,请及时联系站长删除,如有疑问,您可以在商业建筑专区发帖交流相关知识。

附件2099v11edfcc22c1cef1c2s0e1.zip

4.53 MB

下载  售价: 100 积分    赚积分

相关帖子

回复

使用道具 举报

您需要登录后才可以回帖 登录 | 立即注册

本版积分规则

QQ|联系我们|豆豆网 ( 苏ICP备20004746号-1 )

GMT+8, 2025-12-26 06:53 , Processed in 0.015445 second(s), 27 queries .

本站所有内容均由网友自主分享,如有侵权内容或者违法行为,请及时联系站长删除,本站将根据实际情况进行积分奖励!请查看:免责声明

快速回复 返回顶部 返回列表