豆豆网

 找回密码
 立即注册

QQ登录

只需一步,快速开始

查看: 2685|回复: 0

一份5层钢结构商场建筑施工CAD图纸(学生作业)

[复制链接]

0

主题

0

帖子

1096

积分

超级版主

Rank: 8Rank: 8

积分
1096
发表于 2020-2-11 11:11:49 | 显示全部楼层 |阅读模式

该帖子包含附件可供参考学习和下载,您可以 搜索 更多您想要的资源


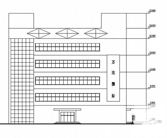
  • 建筑设计面积:6600平方米平方米
  • 占地面积:1320平方米平方米
  • 建筑高度:27米米
  • 建筑层数:5层
  • 设计效果图:无

附件详情

该工程位于某市中心黄金地段,北、东两面为环城观光路,西临商业步行街,中轴线与市商业巨头-金鹰国际购物中心文化广场遥遥相对,占地面积1320平方米,工程总建筑面积为6600平方米,其中主体五层,建筑女儿墙顶标高24.00m。各层功能布置, 1~4层为商场,5层为现代化写字楼,第5层部分空间绿化成为休闲茶座活动中心, 具有现代化城市气息的开放空间,完美地体现了人性化的和谐。
本套资料包含资料目录、设计说明、门窗表、总平面图、各层建筑平面图、立面图、剖面图、卫生间大样、楼梯大样、部分 节点详图 等,共10张图纸

2

2

3

3

4

建筑施工作业 - 1
第 1 张图
建筑施工作业 - 2
第 2 张图
建筑施工作业 - 3
第 3 张图
建筑施工作业 - 4
第 4 张图
以上是部分图纸截图,有些图框没有放大后再截图,可能截图里不清晰或者看不到内容,您可以在下载后查看具体内容

温馨提示:该资料由网友于2020-2-11 11:11:49上传分享,您可以下载该资料进行学习和参考,如有侵权内容或者违法行为,请及时联系站长删除,如有疑问,您可以在商业建筑专区发帖交流相关知识。

附件2099v11edsedcwcssdce2dccsc.rar

563.29 KB

下载  售价: 100 积分    赚积分

建筑施工作业相关帖子

回复

使用道具 举报

您需要登录后才可以回帖 登录 | 立即注册

本版积分规则

QQ|联系我们|豆豆网 ( 苏ICP备20004746号-1 )

GMT+8, 2025-12-28 05:31 , Processed in 0.014377 second(s), 27 queries .

本站所有内容均由网友自主分享,如有侵权内容或者违法行为,请及时联系站长删除,本站将根据实际情况进行积分奖励!请查看:免责声明

快速回复 返回顶部 返回列表