豆豆网

 找回密码
 立即注册

QQ登录

只需一步,快速开始

查看: 577|回复: 0

一份8度区4层框架结构职工食堂结构CAD施工图纸(独立基础)

[复制链接]

0

主题

0

帖子

1832

积分

超级版主

Rank: 8Rank: 8

积分
1832
发表于 2020-2-11 14:56:44 | 显示全部楼层 |阅读模式

该帖子包含附件可供参考学习和下载,您可以 搜索 更多您想要的资源


  • 建筑类别:餐饮
  • 建筑高度类型:多层建筑
  • 建筑地上层数:4层
  • 建筑地下层数:0层
  • 图纸设计深度:施工图
  • 民用建筑设计使用年限:50年
  • 建筑设计结构形式:钢筋混凝土结构
  • 钢筋混凝土结构:框架
  • 基础形式 :独立基础
  • 结构安全等级:二级
  • 地基基础设计等级:丙级
  • 抗震设防烈度:8度抗震
  • 风压:0.4kN/平方米
  • 雪压:0.35kN/平方米
  • 参考图纸:14张
  • 设计年代:近代

附件详情

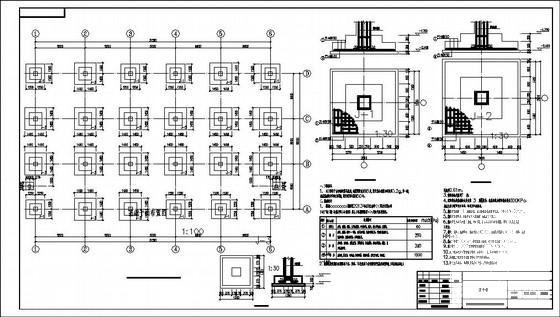
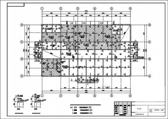
8度区四层框架结构职工食堂。该项目为煤炭企业职工食堂及活动中心综合楼,1~3层为职工食堂,4层为活动中心,总建筑面积2200平方米。包括:结构设计总说明,基础 平面布置图 ,柱平法施工图,梁平法施工图,板平法施工图, 楼梯详图 等共计15张图纸。

第 1 张图
第 1 张图
第 2 张图
第 2 张图
第 3 张图
第 3 张图
第 4 张图
第 4 张图
以上是部分图纸截图,有些图框没有放大后再截图,可能截图里不清晰或者看不到内容,您可以在下载后查看具体内容

温馨提示:该资料由网友于2020-2-11 14:56:44上传分享,您可以下载该资料进行学习和参考,如有侵权内容或者违法行为,请及时联系站长删除,如有疑问,您可以在建筑施工专区发帖交流相关知识。

附件2099v11edfcc2ffcd0cedc1002.rar

1003.91 KB

下载  售价: 100 积分    赚积分

相关帖子

回复

使用道具 举报

您需要登录后才可以回帖 登录 | 立即注册

本版积分规则

QQ|联系我们|豆豆网 ( 苏ICP备20004746号-1 )

GMT+8, 2025-12-27 19:09 , Processed in 0.015192 second(s), 28 queries .

本站所有内容均由网友自主分享,如有侵权内容或者违法行为,请及时联系站长删除,本站将根据实际情况进行积分奖励!请查看:免责声明

快速回复 返回顶部 返回列表