豆豆网

 找回密码
 立即注册

QQ登录

只需一步,快速开始

查看: 620|回复: 0

预应力钢筋混凝土连续梁支架现浇施工示意CAD图纸(dwg)

[复制链接]

0

主题

0

帖子

1244

积分

超级版主

Rank: 8Rank: 8

积分
1244
发表于 2020-7-2 20:00:52 | 显示全部楼层 |阅读模式

该帖子包含附件可供参考学习和下载,您可以 搜索 更多您想要的资源


附件详情

  • 说明:
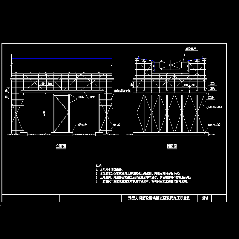
  • 1、本图尺寸以厘米计;
  • 2、本图所示为主梁现浇段上跨道路或上跨溪沟、河道支架的布置方式;
  • 3、上跨溪沟、河道的主梁施工安排在枯水季节进行,其支架基础作防冲刷处理;
  • 4、一般情况下主梁现浇施工均参照本图立杆、横杆间距布置满堂式落地支架。

附件详情

说明:
1、本图尺寸以厘米计;
2、本图所示为主梁现浇段上跨道路或上跨溪沟、河道支架的布置方式;
3、上跨溪沟、河道的主梁施工安排在枯水季节进行,其支架基础作防冲刷处理;
4、一般情况下主梁现浇施工均参照本图立杆、横杆间距布置满堂式落地支架。


连续梁支架现浇 - 1
第 1 张图
以上是部分图纸截图,有些图框没有放大后再截图,可能截图里不清晰或者看不到内容,您可以在下载后查看具体内容

温馨提示:该资料由网友于2020-7-2 20:00:52上传分享,您可以下载该资料进行学习和参考,如有侵权内容或者违法行为,请及时联系站长删除,如有疑问,您可以在建筑施工专区发帖交流相关知识。

附件2099v11ew1fwcfc01sc2cde.rar

35.81 KB

下载  售价: 100 积分    赚积分

连续梁支架现浇相关帖子

回复

使用道具 举报

您需要登录后才可以回帖 登录 | 立即注册

本版积分规则

QQ|联系我们|豆豆网 ( 苏ICP备20004746号-1 )

GMT+8, 2025-12-18 07:35 , Processed in 0.015596 second(s), 27 queries .

本站所有内容均由网友自主分享,如有侵权内容或者违法行为,请及时联系站长删除,本站将根据实际情况进行积分奖励!请查看:免责声明

快速回复 返回顶部 返回列表