豆豆网

 找回密码
 立即注册

QQ登录

只需一步,快速开始

查看: 802|回复: 0

一份15层桩基础框架剪力墙结构办公楼结构CAD施工图纸

[复制链接]

0

主题

0

帖子

1384

积分

超级版主

Rank: 8Rank: 8

积分
1384
发表于 2020-2-12 15:51:04 | 显示全部楼层 |阅读模式

该帖子包含附件可供参考学习和下载,您可以 搜索 更多您想要的资源


  • 建筑类别:办公
  • 建筑高度类型:高层建筑
  • 建筑地上层数:15层
  • 建筑地下层数:1层
  • 图纸设计深度:施工图
  • 民用建筑设计使用年限:50年
  • 建筑设计结构形式:钢筋混凝土结构
  • 钢筋混凝土结构:框架剪力墙
  • 基础形式 :桩基础
  • 结构安全等级:二级
  • 地基基础设计等级:乙级
  • 抗震设防烈度:6度抗震
  • 风压:0.35kN/平方米
  • 雪压:0.2kN/平方米
  • 地下室功能:人防
  • 参考图纸:35张
  • 设计年代:近代

附件详情

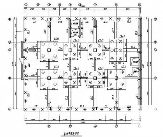
该资料包含: 结构设计说明 ,灌注桩设计及试桩要求,桩平面布置图,基础平面布置图,墙柱 平面布置图 ,板配筋平面图 ,梁平法施工图,楼梯施工图,基坑开挖图等
共35张图纸。
出图时间:近代.09

第 1 张图
第 1 张图
第 2 张图
第 2 张图
第 3 张图
第 3 张图
第 4 张图
第 4 张图
以上是部分图纸截图,有些图框没有放大后再截图,可能截图里不清晰或者看不到内容,您可以在下载后查看具体内容

温馨提示:该资料由网友于2020-2-12 15:51:04上传分享,您可以下载该资料进行学习和参考,如有侵权内容或者违法行为,请及时联系站长删除,如有疑问,您可以在建筑施工专区发帖交流相关知识。

附件2099v11edfc2ccweff0ec02sdd.rar

1.2 MB

下载  售价: 100 积分    赚积分

相关帖子

回复

使用道具 举报

您需要登录后才可以回帖 登录 | 立即注册

本版积分规则

QQ|联系我们|豆豆网 ( 苏ICP备20004746号-1 )

GMT+8, 2025-12-28 03:39 , Processed in 0.016103 second(s), 27 queries .

本站所有内容均由网友自主分享,如有侵权内容或者违法行为,请及时联系站长删除,本站将根据实际情况进行积分奖励!请查看:免责声明

快速回复 返回顶部 返回列表