豆豆网

 找回密码
 立即注册

QQ登录

只需一步,快速开始

查看: 692|回复: 0

一份金沙江欧式高层宾馆建筑设计CAD施工图纸dwg格式(钢筋混凝土结构)

[复制链接]

0

主题

0

帖子

1597

积分

超级版主

Rank: 8Rank: 8

积分
1597
发表于 2020-2-12 15:51:22 | 显示全部楼层 |阅读模式

该帖子包含附件可供参考学习和下载,您可以 搜索 更多您想要的资源


  • 建筑高度类型:高层建筑
  • 外立面材料:幕墙
  • 幕墙面板材料:石材幕墙,人造板幕墙
  • 建筑设计结构形式:钢筋混凝土结构
  • 钢筋混凝土结构:框架核心筒
  • 图纸设计深度:方案(初设图),扩初图,施工图
  • 项目所在地:上海
  • 图纸设计风格:欧陆风格
  • 图纸设计流派:新古典
  • 图纸设计格式:天正建筑CAD 7.0,CAD2000
  • 参考图纸:1张
  • 地下室功能:人防,车库,设备用房
  • 设计效果图:无
金沙江欧式高层宾馆 酒店建筑设计 全套施工图CAD
内容包含建筑平立剖、建筑设计说明、建筑防火设计、建筑节点结构图、建筑楼梯大样图等
金沙江高层酒店建筑地下室平面图
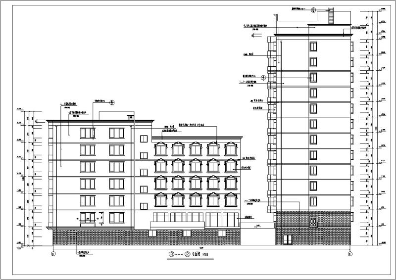
金沙江高层酒店建筑立面图
金沙江高层酒店建筑立面图
金沙江高层酒店建筑楼梯大样图
金沙江高层酒店建筑平面图
金沙江高层酒店建筑平面图
金沙江高层酒店建筑平面图
金沙江高层酒店建筑剖面图
金沙江高层酒店建筑设计说明
金沙江高层酒店 建筑施工 图全套
金沙江高层酒店建筑总平面图

第 1 张图
第 1 张图
第 2 张图
第 2 张图
第 3 张图
第 3 张图
第 4 张图
第 4 张图
第 5 张图
第 5 张图
第 6 张图
第 6 张图
第 7 张图
第 7 张图
第 8 张图
第 8 张图
第 9 张图
第 9 张图
第 10 张图
第 10 张图
第 11 张图
第 11 张图
以上是部分图纸截图,有些图框没有放大后再截图,可能截图里不清晰或者看不到内容,您可以在下载后查看具体内容

温馨提示:该资料由网友于2020-2-12 15:51:22上传分享,您可以下载该资料进行学习和参考,如有侵权内容或者违法行为,请及时联系站长删除,如有疑问,您可以在建筑施工专区发帖交流相关知识。

附件2099v11edscs002w0se2cs20dc.dwg

5.11 MB

下载  售价: 100 积分    赚积分

相关帖子

回复

使用道具 举报

您需要登录后才可以回帖 登录 | 立即注册

本版积分规则

QQ|联系我们|豆豆网 ( 苏ICP备20004746号-1 )

GMT+8, 2025-12-29 02:01 , Processed in 0.015330 second(s), 27 queries .

本站所有内容均由网友自主分享,如有侵权内容或者违法行为,请及时联系站长删除,本站将根据实际情况进行积分奖励!请查看:免责声明

快速回复 返回顶部 返回列表