豆豆网

 找回密码
 立即注册

QQ登录

只需一步,快速开始

查看: 2652|回复: 0

[建筑方案图]一套2层小别墅建筑dwg格式设计图纸(包含效...

[复制链接]

0

主题

0

帖子

1596

积分

超级版主

Rank: 8Rank: 8

积分
1596
发表于 2020-1-22 15:41:32 | 显示全部楼层 |阅读模式

该帖子包含附件可供参考学习和下载,您可以 搜索 更多您想要的资源


  • 住宅类型(型体):塔式(一梯4户以下)
  • 商业:有
  • 高度类别:高层建筑
  • 外立面材料:幕墙
  • 结构形式:钢筋混凝土结构
  • 钢筋混凝土结构:框架剪力墙
  • 图纸深度:施工图
  • 项目位置:广东
  • 设计风格:现代风格
  • 设计流派:现代
  • 图纸格式:天正7,CAD2000
  • 建筑面积:52241.96㎡
  • 用地面积:8003.4㎡
  • 容积率:5.59㎡
  • 建筑密度:51.6%
  • 建筑高度:84.70m
  • 地下室功能:人防,车库,设备用房
  • 效果图:无
  • 机动车辆停车位:220个

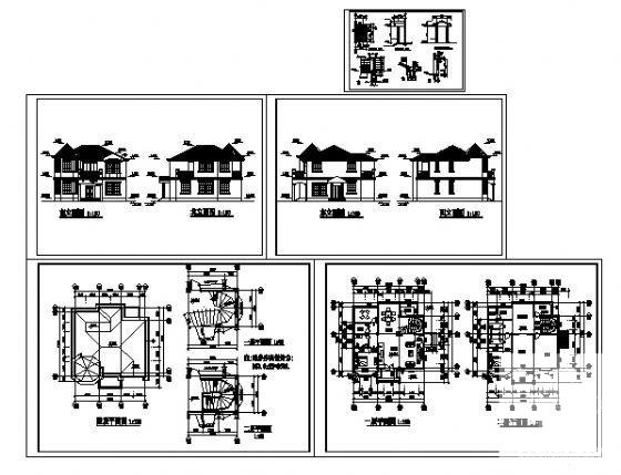
附件详情 建设地点:深圳市南山区   建设用地面积8003.4平方米,   总建筑面积52241.96平方米.   (其中规定容积率建筑面积44683.42平方米,   不计容积率建筑面积5841.53   规定容积率:5.59   建筑覆盖率:51.6%   本工程为25层建筑,建筑总高度84.70米.   停车位总数220个. 其中:地下162个;地上58个.   本工程主要结构类型:框架,剪力墙,抗震设防烈度:7度.   本工程人防工程抗力等级为六级. 防化等级为丙级;   本工程屋面防水等级为II级;   工程合理使用年限为50年。   图纸内容包括图纸目录、设计说明、装修列表、构造做法、总平面图、地下室平面图、门窗列表等等 2 3 4

小别墅设计效果图 - 1
第 1 张图
小别墅设计效果图 - 2
第 2 张图
小别墅设计效果图 - 3
第 3 张图
小别墅设计效果图 - 4
第 4 张图
以上是部分图纸截图,有些图框没有放大后再截图,可能截图里不清晰或者看不到内容,您可以在下载后查看具体内容

温馨提示:该资料由网友于2020-1-22 15:41:32上传分享,您可以下载该资料进行学习和参考,如有侵权内容或者违法行为,请及时联系站长删除,如有疑问,您可以在方案设计专区发帖交流相关知识。

附件2099v11ed12ddc2ddf1112s1cc.rar

940.08 KB

下载  售价: 100 积分    赚积分

小别墅设计效果图相关帖子

回复

使用道具 举报

您需要登录后才可以回帖 登录 | 立即注册

本版积分规则

QQ|联系我们|豆豆网 ( 苏ICP备20004746号-1 )

GMT+8, 2025-12-22 19:25 , Processed in 0.019293 second(s), 27 queries .

本站所有内容均由网友自主分享,如有侵权内容或者违法行为,请及时联系站长删除,本站将根据实际情况进行积分奖励!请查看:免责声明

快速回复 返回顶部 返回列表