豆豆网

 找回密码
 立即注册

QQ登录

只需一步,快速开始

查看: 529|回复: 0

一份3层卫生院、职工宿舍建筑施工CAD图纸

[复制链接]

0

主题

0

帖子

1383

积分

超级版主

Rank: 8Rank: 8

积分
1383
发表于 2020-2-12 15:57:05 | 显示全部楼层 |阅读模式

该帖子包含附件可供参考学习和下载,您可以 搜索 更多您想要的资源


  • 建筑类别:医院附属用房
  • 建筑高度类型:多层建筑
  • 图纸设计深度:施工图
  • 项目所在地:四川
  • 图纸设计风格:现代风格
  • 图纸设计流派:现代
  • 图纸设计格式:天正建筑CAD 7.0,CAD2000
  • 建筑设计面积:1086.09平方米
  • 占地面积:363.99平方米
  • 绿化率:31%
  • 建筑高度:12.5m
  • 地上层数:3层
  • 设计效果图:无

附件详情

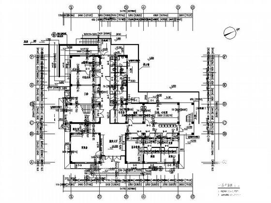
[四川绵阳]某卫生院、职工宿舍 建筑施工 图——25张CAD

卫生院:
总建筑设计面积:1086.09平方米
占地面积:363.99平方米
基地面积3168.94平方米
主体建筑高度:12.5米
层数:3层
绿化率:31%
抗震设防烈度为9度
使用功能:门诊、病房、办公室

宿舍:
总建筑面积:1025.53平方米
占地面积:252.97平方米
基地面积:3168.94平方米
主体建筑高度:13.1米
层数:4层
绿化率:36%
抗震设计按烈度8度设防

该资料包含:总平面图、室内装修作法表、各层平面图、立面图、剖面图、 楼梯详图 、门窗大样图、门窗表、卫生间平面详图、 节点详图

职工宿舍平面图

总平面图

卫生院职工宿舍 - 1
第 1 张图
卫生院职工宿舍 - 2
第 2 张图
卫生院职工宿舍 - 3
第 3 张图
卫生院职工宿舍 - 4
第 4 张图
卫生院职工宿舍 - 5
第 5 张图
以上是部分图纸截图,有些图框没有放大后再截图,可能截图里不清晰或者看不到内容,您可以在下载后查看具体内容

温馨提示:该资料由网友于2020-2-12 15:57:05上传分享,您可以下载该资料进行学习和参考,如有侵权内容或者违法行为,请及时联系站长删除,如有疑问,您可以在建筑施工专区发帖交流相关知识。

附件2099v11edscw1wsw1w121dccdc.rar

3.43 MB

下载  售价: 100 积分    赚积分

卫生院职工宿舍相关帖子

回复

使用道具 举报

您需要登录后才可以回帖 登录 | 立即注册

本版积分规则

QQ|联系我们|豆豆网 ( 苏ICP备20004746号-1 )

GMT+8, 2025-11-19 05:45 , Processed in 0.014754 second(s), 27 queries .

本站所有内容均由网友自主分享,如有侵权内容或者违法行为,请及时联系站长删除,本站将根据实际情况进行积分奖励!请查看:免责声明

快速回复 返回顶部 返回列表