豆豆网

 找回密码
 立即注册

QQ登录

只需一步,快速开始

查看: 3220|回复: 0

[建筑首层平面图]两层花园式住宅楼建筑施工CAD图纸(效果图纸)

[复制链接]

0

主题

0

帖子

1096

积分

超级版主

Rank: 8Rank: 8

积分
1096
发表于 2019-12-29 22:41:57 | 显示全部楼层 |阅读模式

该帖子包含附件可供参考学习和下载,您可以 搜索 更多您想要的资源


  • 住宅类型(型体):塔式(一梯4户以下)
  • 建筑高度:多层建筑
  • 图纸设计深度:施工图
  • 项目地址:广东
  • 图纸设计格式:CAD2000
  • 参考图纸:8张
  • 建筑面积:371.4 平方米
  • 建筑高度: 6.9 m
  • 地上层数:2层
  • 地下层数:1层
  • 效果图:无

附件详情

设计说明:该建筑属于两层住宅建筑,建筑高度6.9米,建筑空间布局结构紧凑,设置合理。
该资料包含:各层平面图、剖面图、立面图、详图。

两层花园式住宅建筑立面图

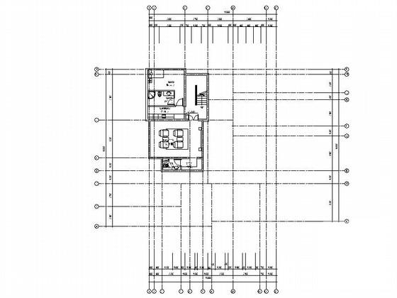
两层花园式住宅建筑首层平面图

两层花园式住宅建筑缩略图

住宅楼首层平面图 - 1
第 1 张图
住宅楼首层平面图 - 2
第 2 张图
住宅楼首层平面图 - 3
第 3 张图
住宅楼首层平面图 - 4
第 4 张图
以上是部分图纸截图,有些图框没有放大后再截图,可能截图里不清晰或者看不到内容,您可以在下载后查看具体内容

温馨提示:该资料由网友于2019-12-29 22:41:57上传分享,您可以下载该资料进行学习和参考,如有侵权内容或者违法行为,请及时联系站长删除,如有疑问,您可以在居住建筑专区发帖交流相关知识。

附件2099v11ed0wcfsdef10scf1e21.zip

9.21 MB

下载  售价: 100 积分    赚积分

住宅楼首层平面图相关帖子

回复

使用道具 举报

您需要登录后才可以回帖 登录 | 立即注册

本版积分规则

QQ|联系我们|豆豆网 ( 苏ICP备20004746号-1 )

GMT+8, 2025-12-27 16:55 , Processed in 0.066176 second(s), 27 queries .

本站所有内容均由网友自主分享,如有侵权内容或者违法行为,请及时联系站长删除,本站将根据实际情况进行积分奖励!请查看:免责声明

快速回复 返回顶部 返回列表