豆豆网

 找回密码
 立即注册

QQ登录

只需一步,快速开始

查看: 1840|回复: 0

建筑细部构造dwg格式dwg格式CAD精选图纸集-坡屋面建筑构造

[复制链接]

0

主题

0

帖子

1352

积分

超级版主

Rank: 8Rank: 8

积分
1352
发表于 2020-8-1 10:23:19 | 显示全部楼层 |阅读模式

该帖子包含附件可供参考学习和下载,您可以 搜索 更多您想要的资源


附件详情

【图集】建筑细部构造cad精选图集-坡屋面建筑构造

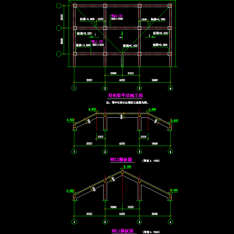
P3 老虎窗及坡屋面檐口做法 P4 坡屋面建筑构造 P5 坡屋面平法 P6 坡屋面平法 P7 坡屋面平法 P8 坡屋面平法 P9 坡屋面平法 P10 屋面节点图 P11 屋面节点图 P12 斜屋顶管道通风详图

p10 屋面节点图.dwg
p10 屋面节点图.dwg
p11 屋面节点图.dwg
p11 屋面节点图.dwg
p12 斜屋顶管道通风详图.dwg
p12 斜屋顶管道通风详图.dwg
p3 老虎窗及坡屋面檐口做法.dwg
p3 老虎窗及坡屋面檐口做法.dwg
p4 坡屋面建筑构造.dwg
p4 坡屋面建筑构造.dwg
p5 坡屋面平法.dwg
p5 坡屋面平法.dwg
p6 坡屋面平法.dwg
p6 坡屋面平法.dwg
p7 坡屋面平法.dwg
p7 坡屋面平法.dwg
p8 坡屋面平法.dwg
p8 坡屋面平法.dwg
p9 坡屋面平法.dwg
p9 坡屋面平法.dwg
以上是部分图纸截图,有些图框没有放大后再截图,可能截图里不清晰或者看不到内容,您可以在下载后查看具体内容

温馨提示:该资料由网友于2020-8-1 10:23:19上传分享,您可以下载该资料进行学习和参考,如有侵权内容或者违法行为,请及时联系站长删除,如有疑问,您可以在建筑设计专区发帖交流相关知识。

附件2099v11eddcc2ce2scds2sfes2.rar

672.99 KB

下载  售价: 100 积分    赚积分

坡屋面建筑图纸相关帖子

回复

使用道具 举报

您需要登录后才可以回帖 登录 | 立即注册

本版积分规则

QQ|联系我们|豆豆网 ( 苏ICP备20004746号-1 )

GMT+8, 2025-12-31 12:53 , Processed in 0.015465 second(s), 27 queries .

本站所有内容均由网友自主分享,如有侵权内容或者违法行为,请及时联系站长删除,本站将根据实际情况进行积分奖励!请查看:免责声明

快速回复 返回顶部 返回列表