豆豆网

 找回密码
 立即注册

QQ登录

只需一步,快速开始

查看: 677|回复: 0

[CAD]县城两层钢框架结构房屋结构图纸(2层轻钢结构独立基础)(梁平法施工图)

[复制链接]

0

主题

0

帖子

1383

积分

超级版主

Rank: 8Rank: 8

积分
1383
发表于 2020-2-13 22:20:51 | 显示全部楼层 |阅读模式

该帖子包含附件可供参考学习和下载,您可以 搜索 更多您想要的资源


  • 建筑类别:其他
  • 建筑高度类型:多层建筑
  • 地上层数:2层
  • 图纸设计深度:施工图
  • 民用建筑设计使用年限:25年
  • 建筑设计结构形式:钢结构
  • 钢结构:轻钢结构
  • 基础形式 :独立基础
  • 结构安全等级:二级
  • 地基基础设计等级:丙级
  • 抗震设防烈度:7度抗震
  • 风压:0.55kN/平方米
  • 雪压:0.15kN/平方米
  • 参考图纸:15张

附件详情

两层钢框架结构房屋,抗震设防烈度为7度,独立基础,包括:结构总说明,梁板柱施工图,框架立面图, 节点详图 等共计15张图。

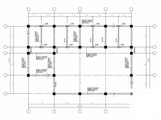
梁平法施工图

钢框架 平面布置图

檩条平面布置图

房屋结构框架结构 - 1
第 1 张图
房屋结构框架结构 - 2
第 2 张图
房屋结构框架结构 - 3
第 3 张图
房屋结构框架结构 - 4
第 4 张图
以上是部分图纸截图,有些图框没有放大后再截图,可能截图里不清晰或者看不到内容,您可以在下载后查看具体内容

温馨提示:该资料由网友于2020-2-13 22:20:51上传分享,您可以下载该资料进行学习和参考,如有侵权内容或者违法行为,请及时联系站长删除,如有疑问,您可以在建筑施工专区发帖交流相关知识。

附件2099v11edfc20edff2ccc2dsd1.rar

522.71 KB

下载  售价: 100 积分    赚积分

房屋结构框架结构相关帖子

回复

使用道具 举报

您需要登录后才可以回帖 登录 | 立即注册

本版积分规则

QQ|联系我们|豆豆网 ( 苏ICP备20004746号-1 )

GMT+8, 2025-11-20 12:11 , Processed in 0.036030 second(s), 27 queries .

本站所有内容均由网友自主分享,如有侵权内容或者违法行为,请及时联系站长删除,本站将根据实际情况进行积分奖励!请查看:免责声明

快速回复 返回顶部 返回列表