豆豆网

 找回密码
 立即注册

QQ登录

只需一步,快速开始

查看: 650|回复: 0

一份框架结构大学综合楼建筑结构CAD施工图纸(符合规范要求)

[复制链接]

0

主题

0

帖子

1642

积分

超级版主

Rank: 8Rank: 8

积分
1642
发表于 2020-2-13 22:20:55 | 显示全部楼层 |阅读模式

该帖子包含附件可供参考学习和下载,您可以 搜索 更多您想要的资源


  • 建筑类别:高校
  • 建筑高度类型:多层建筑
  • 建筑设计结构形式:钢筋混凝土结构
  • 钢筋混凝土结构:框架
  • 图纸设计深度:施工图
  • 项目所在地:山东
  • 图纸设计风格:现代风格
  • 图纸设计流派:现代
  • 图纸设计格式:天正建筑CAD 7.0,CAD2000
  • 参考图纸:39张
  • 建筑设计面积:15400 平方米
  • 建筑高度: 47.50m
  • 地上层数:8层
  • 设计效果图:无

附件详情

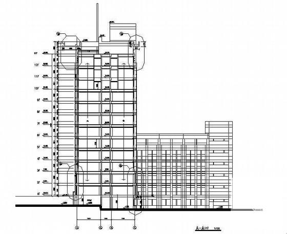
该资料为济南某大学综合楼建筑结构施工方案;该项目为二类高层(民用 )建筑,建筑面积15400 平方米,建筑高度 47.50米,。结构设计使用年限为50年。屋面防水等级(2级)耐用年限(15年)。建筑类别与耐火等级 该项目属于二类高层建筑(12层),耐火等级为 二 级。该项目的防火间距、消防车道的设置符合规范要求。该项目的安全出口数量、宽度及安全疏散距离符合规范要求。这份参考资料包括资料目录、图纸说明、工程作法、门窗表、各层建筑平面、立面、剖面图、卫生间详图、楼梯间详图、墙身大样、檐口作法、梁柱配筋、地基等,共三十九张图纸
设计功能包括:教材库、网络机房、排烟机房、消防及监控机房、休息等

建筑结构施工规范 - 1
第 1 张图
建筑结构施工规范 - 2
第 2 张图
建筑结构施工规范 - 3
第 3 张图
建筑结构施工规范 - 4
第 4 张图
以上是部分图纸截图,有些图框没有放大后再截图,可能截图里不清晰或者看不到内容,您可以在下载后查看具体内容

温馨提示:该资料由网友于2020-2-13 22:20:55上传分享,您可以下载该资料进行学习和参考,如有侵权内容或者违法行为,请及时联系站长删除,如有疑问,您可以在建筑施工专区发帖交流相关知识。

附件2099v11edd0fsfdf0cce0sc2cf.rar

2.82 MB

下载  售价: 100 积分    赚积分

建筑结构施工规范相关帖子

回复

使用道具 举报

您需要登录后才可以回帖 登录 | 立即注册

本版积分规则

QQ|联系我们|豆豆网 ( 苏ICP备20004746号-1 )

GMT+8, 2025-12-27 21:11 , Processed in 0.014559 second(s), 27 queries .

本站所有内容均由网友自主分享,如有侵权内容或者违法行为,请及时联系站长删除,本站将根据实际情况进行积分奖励!请查看:免责声明

快速回复 返回顶部 返回列表