豆豆网

 找回密码
 立即注册

QQ登录

只需一步,快速开始

查看: 2510|回复: 0

一份17层现代风格商业广场建筑施工CAD图纸(甲级设计院)

[复制链接]

0

主题

0

帖子

1096

积分

超级版主

Rank: 8Rank: 8

积分
1096
发表于 2020-2-14 09:44:15 | 显示全部楼层 |阅读模式

该帖子包含附件可供参考学习和下载,您可以 搜索 更多您想要的资源


  • 商业聚合形态:“点”式
  • 建筑类别:商业综合体
  • 建筑高度类型:高层建筑
  • 外立面材料:幕墙
  • 幕墙面板材料:玻璃幕墙
  • 图纸设计深度:施工图
  • 项目所在地:江西
  • 图纸设计风格:现代风格
  • 图纸设计流派:现代
  • 图纸设计格式:天正建筑CAD 7.0,CAD2000
  • 参考图纸:42张

附件详情

进深*开间:75.3mx155m
层高:73.7m
该资料包含:总平面图、建筑各层平面图、立面图、剖面图、详图、门窗大样、节能等。

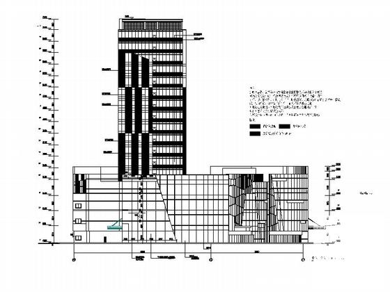
十七层现代风格商业广场建筑剖面图

十七层现代风格商业广场建筑总平面图

十七层现代风格商业广场建筑立面图

十七层现代风格商业广场建筑立面图

十七层现代风格商业广场建筑立面图

十七层现代风格商业广场建筑剖面图

十七层现代风格商业广场建筑剖面图

十七层现代风格商业广场建筑平面图

十七层现代风格商业广场建筑平面图

十七层现代风格商业广场建筑平面图

十七层现代风格商业广场建筑大样图

十七层现代风格商业广场建筑大样图

缩略图

第 1 张图
第 1 张图
第 2 张图
第 2 张图
第 3 张图
第 3 张图
第 4 张图
第 4 张图
第 5 张图
第 5 张图
第 6 张图
第 6 张图
第 7 张图
第 7 张图
以上是部分图纸截图,有些图框没有放大后再截图,可能截图里不清晰或者看不到内容,您可以在下载后查看具体内容

温馨提示:该资料由网友于2020-2-14 09:44:15上传分享,您可以下载该资料进行学习和参考,如有侵权内容或者违法行为,请及时联系站长删除,如有疑问,您可以在商业建筑专区发帖交流相关知识。

附件2099v11edsfcdc2cds1c1ecfds.zip

8.54 MB

下载  售价: 100 积分    赚积分

相关帖子

回复

使用道具 举报

您需要登录后才可以回帖 登录 | 立即注册

本版积分规则

QQ|联系我们|豆豆网 ( 苏ICP备20004746号-1 )

GMT+8, 2025-12-17 07:45 , Processed in 0.022469 second(s), 27 queries .

本站所有内容均由网友自主分享,如有侵权内容或者违法行为,请及时联系站长删除,本站将根据实际情况进行积分奖励!请查看:免责声明

快速回复 返回顶部 返回列表