豆豆网

 找回密码
 立即注册

QQ登录

只需一步,快速开始

查看: 2185|回复: 0

一份3层天然气公司办公楼建筑dwg格式CAD图纸

[复制链接]

0

主题

0

帖子

1470

积分

超级版主

Rank: 8Rank: 8

积分
1470
发表于 2020-2-15 10:26:46 | 显示全部楼层 |阅读模式

该帖子包含附件可供参考学习和下载,您可以 搜索 更多您想要的资源


  • 工程设计年代:近代-09
  • 图纸设计深度:方案
  • 建筑面积(平方米):1328.4
  • 占地面积(平方米):442.8
  • 建筑高度(米):11.1
  • 建筑层数:3

附件详情

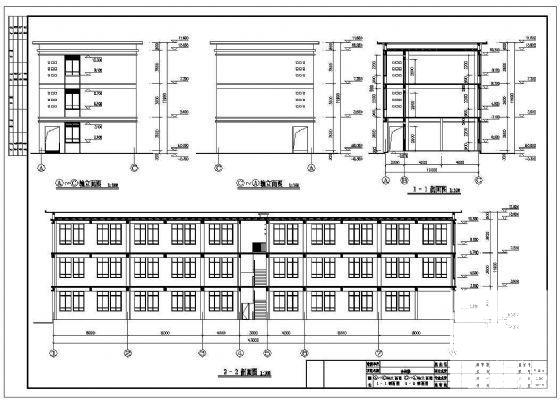
该资料为:某三层天然气公司办公楼建筑方案

工程建筑面积约为:1328.4平方米
建筑占地面积:442.8平方米
建筑设计结构形式为:框架结构
层数为:3层
高度为:11.1米

这份参考资料包括各层建筑平面,立面,剖面图,共6张图纸。

设计功能包括:综合办公室,茶水间,无障碍卫生间。


天然气公司办公楼 - 1
第 1 张图
天然气公司办公楼 - 2
第 2 张图
天然气公司办公楼 - 3
第 3 张图
天然气公司办公楼 - 4
第 4 张图
以上是部分图纸截图,有些图框没有放大后再截图,可能截图里不清晰或者看不到内容,您可以在下载后查看具体内容

温馨提示:该资料由网友于2020-2-15 10:26:46上传分享,您可以下载该资料进行学习和参考,如有侵权内容或者违法行为,请及时联系站长删除,如有疑问,您可以在办公建筑专区发帖交流相关知识。

附件2099v11eds0cc1wwfwfces2sfd.rar

306.18 KB

下载  售价: 100 积分    赚积分

天然气公司办公楼相关帖子

回复

使用道具 举报

您需要登录后才可以回帖 登录 | 立即注册

本版积分规则

QQ|联系我们|豆豆网 ( 苏ICP备20004746号-1 )

GMT+8, 2025-12-23 20:35 , Processed in 0.016189 second(s), 27 queries .

本站所有内容均由网友自主分享,如有侵权内容或者违法行为,请及时联系站长删除,本站将根据实际情况进行积分奖励!请查看:免责声明

快速回复 返回顶部 返回列表