豆豆网

 找回密码
 立即注册

QQ登录

只需一步,快速开始

查看: 2242|回复: 0

一份2层城市展厅给排水消防CAD施工图纸

[复制链接]

0

主题

0

帖子

1385

积分

超级版主

Rank: 8Rank: 8

积分
1385
发表于 2020-2-16 14:02:35 | 显示全部楼层 |阅读模式

该帖子包含附件可供参考学习和下载,您可以 搜索 更多您想要的资源


  • 附件设计说明:有
  • 建筑类别:其他
  • 建筑设计面积:9314平方米
  • 建筑地上层数:2层
  • 图纸设计深度:施工图
  • 参考图纸:12张
  • 设计年代:近代
  • 生活供水设计:生活给水系统
  • 排水设计:污水系统,雨水系统
  • 消防设计:室外消火栓系统,室内消火栓系统
  • 供水方式:市政供水
  • 排水体制:污废合流
  • 消火栓用水量室外(L/S):30
  • 消火栓用水量室内(L/S):15
  • 特殊系统:直饮水
  • 大样节点:水箱,卫生间
  • 项目所在地:黑龙江

附件详情

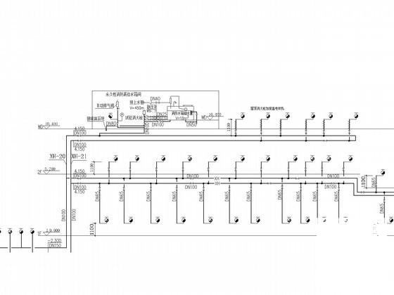
  • 消防系统 原理图
  • 给排水消防平面图
  • 卫生间详图
  • 水箱间详图
  • 自动喷洒原理图
  • 给排水立管图
  • 雨水立管图
  • 给排水总平面图
  • 污水立管图

附件详情

该项目包括展厅和车间,地上二层,地下0层,建筑高度12.4米,建筑面积为9314平方米,属多层公共建筑。建筑工程设计耐火等级二级。室内外高差0.02米。该项目设计内容包括展厅给排水、消火栓灭火系统、自动喷水灭火系统、灭火器配置和室外管线设计。
,共12张。

污水立管图

消火栓系统图

给排水平面图

第 1 张图
第 1 张图
第 2 张图
第 2 张图
第 3 张图
第 3 张图
第 4 张图
第 4 张图
以上是部分图纸截图,有些图框没有放大后再截图,可能截图里不清晰或者看不到内容,您可以在下载后查看具体内容

温馨提示:该资料由网友于2020-2-16 14:02:35上传分享,您可以下载该资料进行学习和参考,如有侵权内容或者违法行为,请及时联系站长删除,如有疑问,您可以在给水排水专区发帖交流相关知识。

附件2099v11edeww120cddcdccd0d1.rar

3.15 MB

下载  售价: 100 积分    赚积分

相关帖子

回复

使用道具 举报

您需要登录后才可以回帖 登录 | 立即注册

本版积分规则

QQ|联系我们|豆豆网 ( 苏ICP备20004746号-1 )

GMT+8, 2025-12-31 23:07 , Processed in 0.018502 second(s), 27 queries .

本站所有内容均由网友自主分享,如有侵权内容或者违法行为,请及时联系站长删除,本站将根据实际情况进行积分奖励!请查看:免责声明

快速回复 返回顶部 返回列表