豆豆网

 找回密码
 立即注册

QQ登录

只需一步,快速开始

查看: 4040|回复: 0

幼儿园入口广场铺装dwg格式CAD详大样图(平面图)

[复制链接]

0

主题

0

帖子

962

积分

超级版主

Rank: 8Rank: 8

积分
962
发表于 2020-9-8 20:35:01 | 显示全部楼层 |阅读模式

该帖子包含附件可供参考学习和下载,您可以 搜索 更多您想要的资源


附件详情

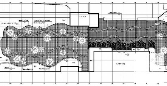
幼儿园入口广场铺装详图,包括铺装平面图、铺装大样图、剖面图、水洗豆石铺装做法、广场砖铺装做法,共一个CAD文件。

入口广场平面图 - 1
第 1 张图
入口广场平面图 - 2
第 2 张图
入口广场平面图 - 3
第 3 张图
以上是部分图纸截图,有些图框没有放大后再截图,可能截图里不清晰或者看不到内容,您可以在下载后查看具体内容

温馨提示:该资料由网友于2020-9-8 20:35:01上传分享,您可以下载该资料进行学习和参考,如有侵权内容或者违法行为,请及时联系站长删除,如有疑问,您可以在学习分享专区发帖交流相关知识。

附件2099v11ecwddf0efes2scc1.rar

1.14 MB

下载  售价: 100 积分    赚积分

入口广场平面图相关帖子

回复

使用道具 举报

您需要登录后才可以回帖 登录 | 立即注册

本版积分规则

QQ|联系我们|豆豆网 ( 苏ICP备20004746号-1 )

GMT+8, 2025-12-17 19:44 , Processed in 0.018106 second(s), 27 queries .

本站所有内容均由网友自主分享,如有侵权内容或者违法行为,请及时联系站长删除,本站将根据实际情况进行积分奖励!请查看:免责声明

快速回复 返回顶部 返回列表