豆豆网

 找回密码
 立即注册

QQ登录

只需一步,快速开始

查看: 3902|回复: 0

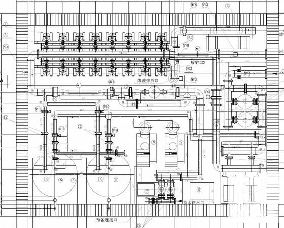
一套连续膜过滤系统设计格式施工图纸(平面布置图)

[复制链接]

0

主题

0

帖子

2089

积分

超级版主

Rank: 8Rank: 8

积分
2089
发表于 2020-9-11 21:40:48 | 显示全部楼层 |阅读模式

该帖子包含附件可供参考学习和下载,您可以 搜索 更多您想要的资源


  • 附件设计说明:有
  • 类型:污水处理厂
  • 处理技术:生物膜法
  • 设计阶段:施工图设计
  • 参考图纸:10张以下

附件详情

  • 工艺流程图
  • 架子图
  • 膜组件装配图
  • 设备安装尺寸
  • 设备基础图
  • 设备 平面布置图

附件详情

该项目为CMF设备1m3/h污水处理工程,整个工艺操作方便控制简单,观察方便。

反冲洗

工艺流程图

膜组件装配图

过滤施工图 - 1
第 1 张图
过滤施工图 - 2
第 2 张图
过滤施工图 - 3
第 3 张图
过滤施工图 - 4
第 4 张图
以上是部分图纸截图,有些图框没有放大后再截图,可能截图里不清晰或者看不到内容,您可以在下载后查看具体内容

温馨提示:该资料由网友于2020-9-11 21:40:48上传分享,您可以下载该资料进行学习和参考,如有侵权内容或者违法行为,请及时联系站长删除,如有疑问,您可以在参考资料专区发帖交流相关知识。

附件2099v11ecwddfceew1swscd.rar

3.33 MB

下载  售价: 100 积分    赚积分

过滤施工图相关帖子

回复

使用道具 举报

您需要登录后才可以回帖 登录 | 立即注册

本版积分规则

QQ|联系我们|豆豆网 ( 苏ICP备20004746号-1 )

GMT+8, 2025-12-31 16:34 , Processed in 0.016556 second(s), 27 queries .

本站所有内容均由网友自主分享,如有侵权内容或者违法行为,请及时联系站长删除,本站将根据实际情况进行积分奖励!请查看:免责声明

快速回复 返回顶部 返回列表