豆豆网

 找回密码
 立即注册

QQ登录

只需一步,快速开始

查看: 973|回复: 0

框剪结构会议中心工程玻璃幕墙工程施工组织设计(100余页附图纸)(安全管理措施)()

[复制链接]

0

主题

0

帖子

1642

积分

超级版主

Rank: 8Rank: 8

积分
1642
发表于 2020-9-12 13:13:40 | 显示全部楼层 |阅读模式

该帖子包含附件可供参考学习和下载,您可以 搜索 更多您想要的资源


  • 建筑高度类型:多层建筑
  • 幕墙面板:玻璃幕墙
  • 幕墙支承:点支承
  • 玻璃幕墙:半隐框,明框,构件式
  • 编制时间:
  • 主要设备:电动玻璃吸盘 配电箱 手电钻 铆钉枪
  • 方案重点:测量放线,预埋件(后置埋件)施工,安装,打胶
  • 施工难点:定位安装 安装空间极度狭小 安装难度大

附件详情

  • 目录
  • 第一章 综合说明4
  • 第一节 编制依据5
  • 第二节 编制内容6
  • 第三节 工程概述及工程目标6
  • 第二章 施工组织设计 总体策划及部署8
  • 第一节 现场管理总体流程8
  • 第二节 施工组织设计总体策划9
  • 第三章 施工总平面布置11
  • 第四章 分部分项工程的施工技术方案和主要施工方法12
  • 第一节 施工测量方案12
  • 第二节 后补埋件 施工方案 21
  • 第三节 玻璃幕墙 施工方案 24
  • 第四节 采光顶 施工方案 30
  • 第六节 焊接方案35
  • 第五章 确保工程质量的技术组织措施39
  • 第一节 质量保证计划39
  • 第二节 设计质量保证措施40
  • 第四节 材料采购质量保证措施47
  • 第五节 加工制作质量保证措施49
  • 第六节 现场施工质量保证措施55
  • 第七节 运输阶段质量保证措施59
  • 第八节 现场半成品及成品的保护措施59
  • 第六章 确保工期的技术组织措施及施工总进度网络图63
  • 第一节 施工工期及施工总进度网络图63
  • 第二节 确保工期的技术组织措施64
  • 第七章 确保安全生产的技术组织措施69
  • 第一节 公司的安全保证体系及相关制度69
  • 第二节 施工安全防护措施70
  • 第三节 施工现场临时用电安全措施71
  • 第四节 机械设备安全管理措施72
  • 第五节 安全事故及紧急情况处理预案73
  • 第六节 消防保卫措施82
  • 第七节 施工现场治安措施83
  • 第八章 确保文明施工的技术组织措施85
  • 第一节 现场文明施工保证措施85
  • 第二节 施工扰民与民扰的控制措施87
  • 第三节 环境保护措施88
  • 第九章 施工机械设备配备情况及进场计划90
  • 第十章 劳动力安排计划91
  • 第十一章 设备、材料招标计划和进场计划91
  • 第一节 设备、材料招标计划91
  • 第二节 材料进场计划93
  • 第十二章 系统调试验收计划98
  • 第十三章保修措施及承诺99
  • 第十四章 难点重点分析及解决措施101
  • 第十五章 该项目适用的法律、法规、行业标准及规范103
  • 附图1:施工总进度网络图106

附件详情

[北京]框剪结构会议中心工程玻璃幕墙工程施工组织设计,106页,附图,该项目专为玻璃幕墙施工为主,内容包括各分项方案、 施工工艺 、施工 质量控制 安全文明措施 等,可供参考学习。
……
幕墙项目:隐框幕墙、明框幕墙、采光顶等
幕墙建筑设计结构形式:玻璃幕墙,铝龙骨框架建筑设计结构形式
龙骨材质:钢龙骨Q235-B,铝龙骨6063-T5/T6表面氟碳喷涂
玻璃规格和类型:幕墙玻璃采用6mm(LOW-E)+12A+6mm双银双钢化中玻璃;采光顶采用6+1.14PVB+6+12A+6LOW-E
……
分部分项工程的施工技术方案和主要施工方法
第一节 施工测量方案
第二节 后补埋件施工方案
第三节 玻璃幕墙施工方案
第四节 采光顶施工方案
第六节 焊接方案
……
106页 ,20。

材料放置方式

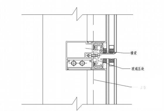
打胶示意图

打胶示意图

框玻璃幕墙施工组织 - 1
第 1 张图
框玻璃幕墙施工组织 - 2
第 2 张图
框玻璃幕墙施工组织 - 3
第 3 张图
框玻璃幕墙施工组织 - 4
第 4 张图
以上是部分图纸截图,有些图框没有放大后再截图,可能截图里不清晰或者看不到内容,您可以在下载后查看具体内容

温馨提示:该资料由网友于2020-9-12 13:13:40上传分享,您可以下载该资料进行学习和参考,如有侵权内容或者违法行为,请及时联系站长删除,如有疑问,您可以在建筑施工专区发帖交流相关知识。

附件2099v11ecwddesc12wscfdw.rar

933.44 KB

下载  售价: 100 积分    赚积分

框玻璃幕墙施工组织相关帖子

回复

使用道具 举报

您需要登录后才可以回帖 登录 | 立即注册

本版积分规则

QQ|联系我们|豆豆网 ( 苏ICP备20004746号-1 )

GMT+8, 2025-12-29 01:13 , Processed in 0.016133 second(s), 27 queries .

本站所有内容均由网友自主分享,如有侵权内容或者违法行为,请及时联系站长删除,本站将根据实际情况进行积分奖励!请查看:免责声明

快速回复 返回顶部 返回列表