豆豆网

 找回密码
 立即注册

QQ登录

只需一步,快速开始

查看: 2020|回复: 0

上3层别墅空调CAD图纸(平面图)(dwg)

[复制链接]

0

主题

0

帖子

970

积分

超级版主

Rank: 8Rank: 8

积分
970
发表于 2020-9-14 06:33:03 | 显示全部楼层 |阅读模式

该帖子包含附件可供参考学习和下载,您可以 搜索 更多您想要的资源


  • 附件设计说明:无
  • 建筑类别:别墅
  • 建筑高度类型:多层建筑
  • 建筑地上层数:3层
  • 建筑地下层数:1层
  • 图纸设计深度:施工图
  • 参考图纸:4张
  • 设计内容:空调
  • 项目所在地:四川

附件详情

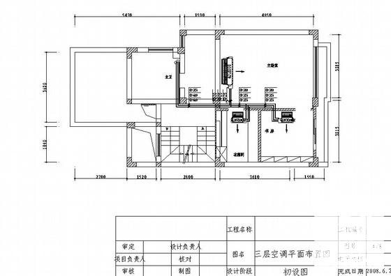
图纸为某别墅中央空调图,该项目地下一层,地上三层,图纸为空调平面图。

上3层别墅空调CAD图纸(平面图)(dwg)
第 1 张图
以上是部分图纸截图,有些图框没有放大后再截图,可能截图里不清晰或者看不到内容,您可以在下载后查看具体内容

温馨提示:该资料由网友于2020-9-14 06:33:03上传分享,您可以下载该资料进行学习和参考,如有侵权内容或者违法行为,请及时联系站长删除,如有疑问,您可以在别墅建筑专区发帖交流相关知识。

附件2099v11ecwdd1esw2cc2d1c.rar

143.91 KB

下载  售价: 100 积分    赚积分

相关帖子

回复

使用道具 举报

您需要登录后才可以回帖 登录 | 立即注册

本版积分规则

QQ|联系我们|豆豆网 ( 苏ICP备20004746号-1 )

GMT+8, 2025-11-25 12:27 , Processed in 0.016361 second(s), 27 queries .

本站所有内容均由网友自主分享,如有侵权内容或者违法行为,请及时联系站长删除,本站将根据实际情况进行积分奖励!请查看:免责声明

快速回复 返回顶部 返回列表