豆豆网

 找回密码
 立即注册

QQ登录

只需一步,快速开始

查看: 2486|回复: 0

托儿所中央空调改造图(总共4页CAD图纸)(设备布置图)(dwg)

[复制链接]

0

主题

0

帖子

582

积分

超级版主

Rank: 8Rank: 8

积分
582
发表于 2020-9-17 07:26:54 | 显示全部楼层 |阅读模式

该帖子包含附件可供参考学习和下载,您可以 搜索 更多您想要的资源


  • 设计内容:中央空调
  • CAD版本:CAD2000
  • 参考图纸:4张
  • 建筑地上层数:3层

附件详情

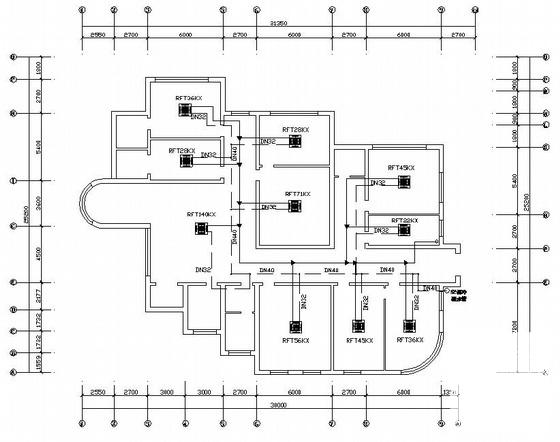
该项目共三层,该资料包含平面图及设备布置图。

中央空调布置图 - 1
第 1 张图
中央空调布置图 - 2
第 2 张图
以上是部分图纸截图,有些图框没有放大后再截图,可能截图里不清晰或者看不到内容,您可以在下载后查看具体内容

温馨提示:该资料由网友于2020-9-17 07:26:54上传分享,您可以下载该资料进行学习和参考,如有侵权内容或者违法行为,请及时联系站长删除,如有疑问,您可以在暖通空调专区发帖交流相关知识。

附件2099v11ecwdswc0e00fsdf2.rar

68.85 KB

下载  售价: 100 积分    赚积分

中央空调布置图相关帖子

回复

使用道具 举报

您需要登录后才可以回帖 登录 | 立即注册

本版积分规则

QQ|联系我们|豆豆网 ( 苏ICP备20004746号-1 )

GMT+8, 2025-12-26 23:50 , Processed in 0.017907 second(s), 28 queries .

本站所有内容均由网友自主分享,如有侵权内容或者违法行为,请及时联系站长删除,本站将根据实际情况进行积分奖励!请查看:免责声明

快速回复 返回顶部 返回列表