豆豆网

 找回密码
 立即注册

QQ登录

只需一步,快速开始

查看: 2392|回复: 0

一份2层农贸批发市场给排水CAD施工图纸(卫生间详图)

[复制链接]

0

主题

0

帖子

1075

积分

超级版主

Rank: 8Rank: 8

积分
1075
发表于 2020-2-16 22:41:22 | 显示全部楼层 |阅读模式

该帖子包含附件可供参考学习和下载,您可以 搜索 更多您想要的资源


  • 附件设计说明:有
  • 建筑类别:其他
  • 建筑高度类型:多层建筑
  • 建筑设计结构形式:其他结构
  • 建筑设计面积:26729平方米
  • 建筑地上层数:2层
  • 图纸设计深度:施工图
  • 参考图纸:9张
  • 生活供水设计:生活给水系统
  • 排水设计:污水系统,雨水系统
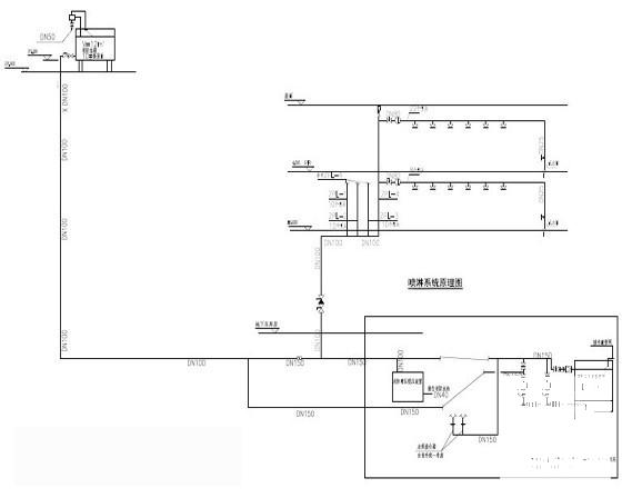
  • 消防设计:室外消火栓系统,室内消火栓系统,喷淋系统
  • 供水方式:市政供水
  • 供水分区:无
  • 排水体制:雨污分流
  • 排水技术:重力排水
  • 雨水重现期:50年
  • 火灾危险等级:中危险级Ⅰ级
  • 消火栓用水量室外(L/S):30
  • 消火栓用水量室内(L/S):30
  • 项目所在地:浙江

附件详情

  • 资料目录
  • 给排水施工说明
  • 一层给排水图(A区)
  • 一层平面给排水图(B区)
  • 二层给排水布置图
  • 卫生间详图、系统图
  • 喷淋系统图

附件详情

项目概要: 该项目位于浙江,是单层开敞式菜市场,建筑总占地面积为2578.9平米,总建筑面积为26729.8平米,建筑层数为一层,局部两层,建筑高度12.56米;建筑等级二级;建筑使用年限:25年;耐火等级:二级;屋面防水等级:II级;结构类型:管桁架结构及局部框架结构。
共计9张图纸

二层给排水平面图

屋面排水 平面布置图

喷淋消防平面图

批发市场给排水 - 1
第 1 张图
批发市场给排水 - 2
第 2 张图
批发市场给排水 - 3
第 3 张图
批发市场给排水 - 4
第 4 张图
以上是部分图纸截图,有些图框没有放大后再截图,可能截图里不清晰或者看不到内容,您可以在下载后查看具体内容

温馨提示:该资料由网友于2020-2-16 22:41:22上传分享,您可以下载该资料进行学习和参考,如有侵权内容或者违法行为,请及时联系站长删除,如有疑问,您可以在给水排水专区发帖交流相关知识。

附件2099v11edc0sc2sewcwdcc12cs.rar

2.75 MB

下载  售价: 100 积分    赚积分

批发市场给排水相关帖子

回复

使用道具 举报

您需要登录后才可以回帖 登录 | 立即注册

本版积分规则

QQ|联系我们|豆豆网 ( 苏ICP备20004746号-1 )

GMT+8, 2025-12-20 07:09 , Processed in 0.014309 second(s), 27 queries .

本站所有内容均由网友自主分享,如有侵权内容或者违法行为,请及时联系站长删除,本站将根据实际情况进行积分奖励!请查看:免责声明

快速回复 返回顶部 返回列表