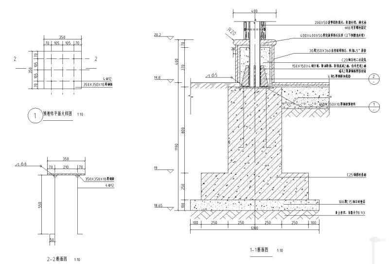
住宅小区弧形钢方通廊架详图纸设计_CAD
- 发布时间:2021-05-12
- 评论次数:0
- 浏览次数:0
- 文件大小:1.37 MB
- 收藏次数:0
- 
								文件名称: 附件-996099779557987850.dwg 附件-996099779557987850.dwg
								小区住宅设计图纸下载
							
						- 景观弧形方通廊架详图纸设计_CAD
- 园林景观廊架标准化设计-方通廊架结构详图cad
- 园林景观廊架标准化设计-方通廊架详图cad
- 方钢廊架节点详图设计cad
- “L”形方通顶廊架CAD节点详图纸设计
- 特色休闲弧形廊架详图纸设计_CAD
- 单臂式弧形廊架详图纸设计_CAD
- 12种廊架做法CAD详图纸(弧形廊架)(dwg)
- 弧形廊架施工大样CAD图纸(廊架节点)(dwg)
- 园林景观节点CAD详图纸-方通木廊架CAD详图纸设计(dwg)
- 园林景观节点CAD详图纸-单臂方通廊架CAD详图纸设计(dwg)
- 弧形木廊架施工CAD详图纸(dwg)
- 弧形钢管廊架CAD施工图纸(dwg)
- 弧形木廊架施工CAD详图纸(dwg)
- 弧形木廊架节点详图设计cad
- 住宅小区真石漆廊架详图纸设计_CAD
- 煤仓通廊钢桁架结构施工CAD图纸
- L型通廊钢混结构施工CAD图纸
- 弧形廊架景观施工方案图CAD
- 一份弧形廊架dwg格式施工详细设计CAD图纸
全部评论
						
							评论网友评论仅友表达个人看法,并不表明本站同意其观点,不得发布违反法律法规的内容!
						
						
 
	              	 
	              	 
	              	 
	              	 
	              	