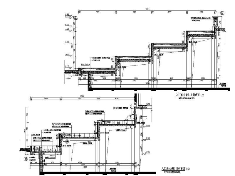
特色入口跌水池做法详大样图设计_CAD
- 发布时间:2021-05-13
- 评论次数:0
- 浏览次数:0
- 文件大小:4.5 MB
- 收藏次数:0
-
文件名称:
附件-996068097805809795.dwg
跌水大样图下载
- 现代风格水池做法详大样图设计_CAD
- 住宅入口景观跌水水池CAD节点详大样图设计
- 特色L形叠水池详大样图设计_CAD
- 特色花池坐凳做法详大样图设计_CAD
- 现代特色水池做法大样cad
- 主入口特色景墙做法详图纸设计_CAD
- 居住区自行车库入口做法详大样图_CAD
- 特色跌水池景观做法CAD节点详图纸设计
- 入口跌水池做法详图纸cad平面图
- 入口跌水池做法详图纸cad平面图
- 特色入口水景详图施工做法,平面图
- 特色入口艺术水景详图做法cad平面图
- 入口跌水施工CAD详大样图(dwg)
- 跌级水池大样图纸cad平面图及剖面图
- 特色水景围墙及溢水池节点构造CAD详大样图(平面图)(dwg)
- 特色景观花架施工CAD详大样图(dwg)
- 特色组合水景施工CAD详大样图(dwg)
- 一份特色名苑入口岗亭做法详细设计CAD图纸(平面图)
- 流水壁做法CAD详大样图
- 特色水池、停车位做法CAD节点详图纸设计
全部评论
评论网友评论仅友表达个人看法,并不表明本站同意其观点,不得发布违反法律法规的内容!
