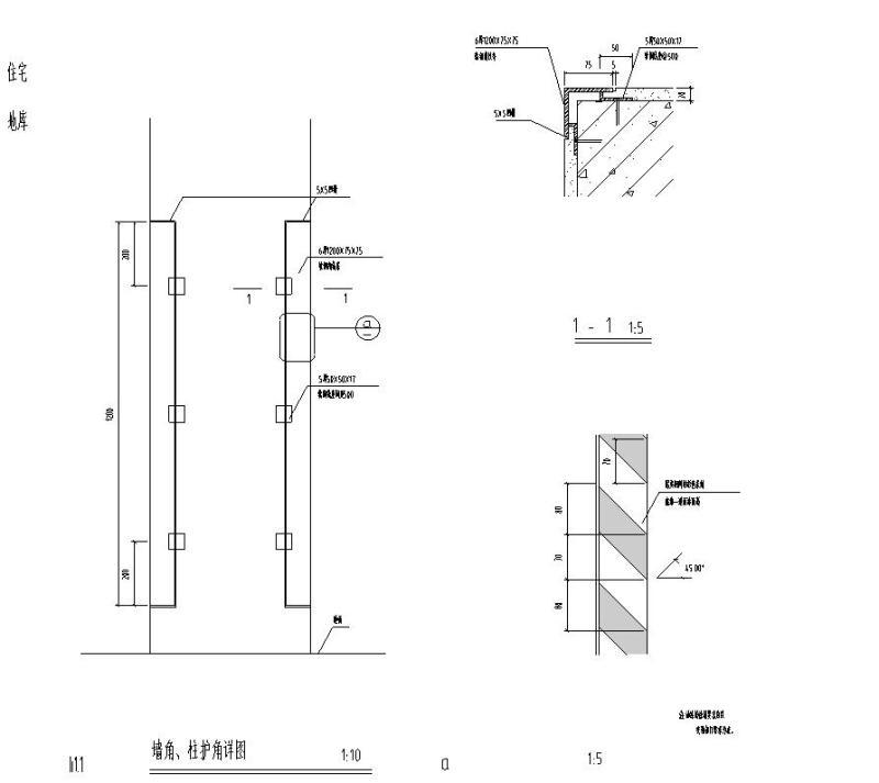
住宅地库通用CAD节点详图纸设计
- 发布时间:2021-05-13
- 评论次数:0
- 浏览次数:0
- 文件大小:0.29 MB
- 收藏次数:0
-
文件名称:
附件-996085767556885797.dwg
住宅设计图纸下载
- 服务中心地上通用节点详大样图2018(CAD)
- 防水通用CAD节点详图纸设计
- 栏杆通用CAD节点详图纸设计
- 单斜V节点构造详设计图纸cad
- 大型住宅地库混凝土结构施工方案图纸CAD
- 住宅地梁及基础节点构造详图纸cad
- 焊缝通用详大样图2018(CAD)
- 库坡道节点构造详图纸cad
- 库坡道节点构造详图纸cad
- 住宅地质详勘报告(附图附表及现场照),剖面图
- 示警桩通用设计节点构造CAD详图纸(dwg)
- 箱变通用节点构造详细设计CAD图纸
- 的通用节点构造详细设计CAD图纸
- 设计院预埋件通用节点构造CAD详图纸
- 别墅通用楼梯设计节点构造CAD详图纸
- 其他通用CAD节点详图纸设计
- 沟、井通用CAD节点详图纸设计
- 变形缝通用CAD节点详图纸设计
- 百叶、格栅通用CAD节点详图纸设计
- 外围护冷热桥通用CAD节点详图纸设计
全部评论
评论网友评论仅友表达个人看法,并不表明本站同意其观点,不得发布违反法律法规的内容!
