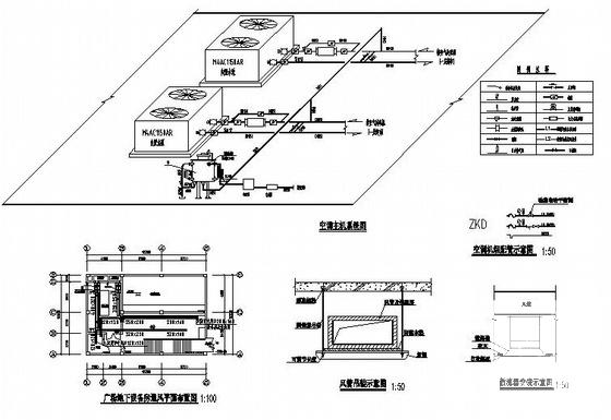
超市暖通空调全套施工CAD图纸
- 发布时间:2021-05-14
- 评论次数:0
- 浏览次数:0
- 文件大小:0.53 MB
- 收藏次数:0
-
文件名称:
附件-996095977777798005.rar
暖通空调施工下载
- 暖通专业毕业论文---市某大型超市中央空调系统设计.pdf
- 超市空调平面CAD施工图纸
- 大型广场暖通空调全套施工图cad平面图
- 超市空调水系统流程CAD图纸(dwg)
- 超市空调设计竣工CAD大样图(dwg)
- 超市中央空调设计CAD施工图纸.dwg
- 4层超市空调设计竣工CAD图纸.dwg
- 建材超市空调设计CAD施工图纸.dwg
- 3层超市空调通风CAD施工图纸
- 3层超市空调CAD施工大样图
- 超市通风空调全套标准施工CAD大样图
- 大型超市全套施工图纸cad节点详图
- 2层超市空调改造CAD图纸(中央空调)(dwg)
- 海泰富大厦暖通空调全套施工图cad平面图及系统图
- 大型商住楼暖通空调全套施工图(知名设计院)平面图
- 体育中心暖通空调全套施工图(大院图纸、座椅送风)平面图
- 地标建筑暖通空调设计全套施工图444张(660米,46万平)平面图
- 大型购物广场暖通空调全套施工图214张(知名项目,大院设计)平面图
- 大型综合医院暖通空调设计全套施工图102张(含洁净)平面图
- 大型综合商业办公楼暖通空调全套施工图cad平面图
全部评论
评论网友评论仅友表达个人看法,并不表明本站同意其观点,不得发布违反法律法规的内容!
