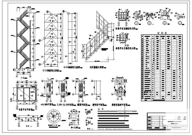
右岸高程300m混凝土生产系统上罐楼梯结构图纸cad
- 发布时间:2021-05-21
- 评论次数:0
- 浏览次数:0
- 文件大小:0.15 MB
- 收藏次数:0
-
文件名称:
附件-996057656557806579.rar
相关下载
- 大坝右岸趾板工程.doc
- 右岸生态挡墙专项施工方案.doc
- 换罐站结构CAD图纸(dwg)
- 右岸污水截流中途提升泵站及配套管网工程cad
- 丹江口大坝加高工程右岸转弯坝段锯缝方案研究.pdf
- 水电站右岸高低线道路及治理工程投标文件.docx
- 三峡左岸79m高程混凝土系统制冰楼结构设计.pdf
- 三峡左岸90m高程混凝土系统制冰楼结构设计.pdf
- 混凝土结构两折楼梯结构CAD图纸(dwg)
- 1000-D900-1.6-右楼梯节点构造详图纸cad
- 实用旋转楼梯全套CAD图纸(混凝土结构)(dwg)
- 混凝土楼梯合集结构施工方案图纸CAD
- 混凝土钢结构楼梯CAD详图纸大全(22个)(单跑楼梯)(dwg)
- 大型罐基础结构设计CAD施工图纸(钢筋混凝土结构).dwg
- 罐区结构布置详图纸2017(CAD)
- 混凝土结构楼梯计算表格.xls
- 混凝土生产管理系统介绍(PPT,26页)
- 室外管网总CAD图纸及高程表(给水系统)(dwg)
- 一份蓄水池结构CAD图纸(300m圆形)(膨胀螺栓)
- 某电站右岸尾闸室开挖方案(含P3进度、安全评估).doc
全部评论
评论网友评论仅友表达个人看法,并不表明本站同意其观点,不得发布违反法律法规的内容!
