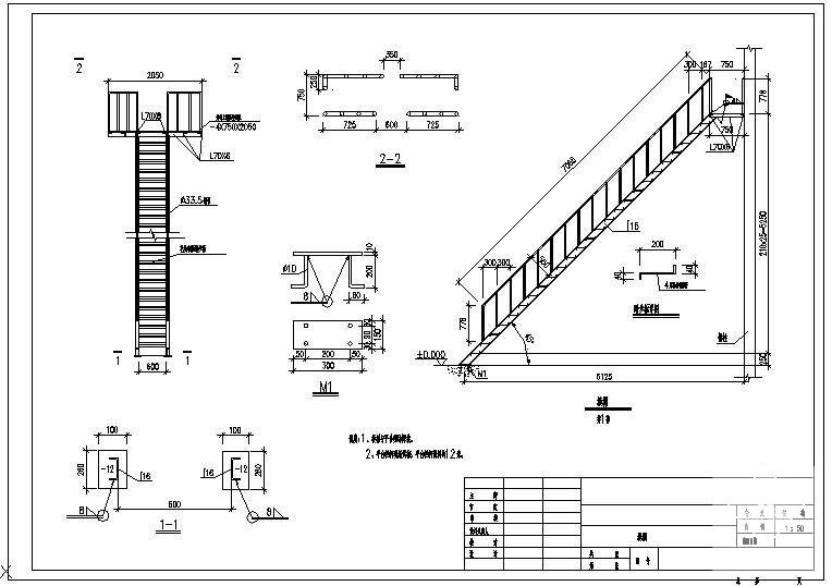
钢楼梯节点构造详图纸cad_6张图纸
- 发布时间:2021-05-22
- 评论次数:0
- 浏览次数:0
- 文件大小:0.17 MB
- 收藏次数:0
-
文件名称:
附件-995797878677780988.rar
钢楼梯节点详图下载
- 钢楼梯节点构造详图纸cad
- 钢楼梯节点详图纸cad
- 钢楼梯节点详图(2018,PDF).pdf
- 室内钢楼梯节点构造CAD详图纸(dwg)
- 45度钢楼梯节点构造CAD详图纸(dwg)
- 钢楼梯节点构造CAD详图纸(dwg)
- 钢框架楼梯梁节点构造CAD详图纸(dwg)
- 室外钢楼梯节点构造CAD详图纸
- 室外钢楼梯节点构造CAD详图纸
- 旋转钢楼梯节点构造CAD详图纸
- 两跑钢楼梯节点构造CAD详图纸(2)
- 两跑钢楼梯节点构造CAD详图纸(1)
- 两跑钢楼梯节点构造CAD详图纸
- 钢楼梯节点构造详图纸cad大样图
- 结构钢楼梯大样节点构造详图纸cad
- 钢楼梯结构节点构造设计详图cad
- 钢楼梯结构节点构造详图纸cad
- 三张钢楼梯节点构造详图纸cad
- 复式钢楼梯结构节点构造详图纸cad
- 钢楼梯节点构造设计详图纸cad
全部评论
评论网友评论仅友表达个人看法,并不表明本站同意其观点,不得发布违反法律法规的内容!
