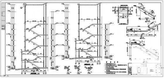
6层砖混结构学园样板区建筑结构设计施工CAD大样图
- 发布时间:2021-05-02
- 评论次数:0
- 浏览次数:0
- 文件大小:2.64 MB
- 收藏次数:0
-
文件名称:
附件-995879575069879508968.rar
建筑结构学下载
- 6层学园样板区砖混建筑结构CAD施工大样图
- 浅谈砖混结构设计(砖混砌体)
- 5层砖混结构农民公寓结构设计施工CAD大样图
- 6层砖混结构农民公寓结构设计施工CAD大样图
- 3层农村砖混别墅结构设计施工CAD大样图
- 砖混结构住宅楼结构设计CAD图纸(大样图)(dwg)
- 5.4米砖混结构住宅区大门建筑结构CAD施工图纸
- 6层砖混结构住宅楼建筑结构施工CAD大样图
- [砖混结构]砖混别墅建筑和结构CAD图纸
- [CAD图]7度区砖混别墅结构设计说明(dwg)
- [CAD图]8度区砖混住宅结构设计说明(dwg)
- [CAD图]6度区砖混住宅结构设计说明(dwg)
- [CAD]7度区砖混别墅结构设计说明.dwg
- [CAD]8度区砖混住宅结构设计说明.dwg
- [CAD]6度区砖混住宅结构设计说明.dwg
- 砖混别墅建筑结构设计CAD施工图纸(总共21张)
- 55平砖混结构厕所建筑、结构设计CAD图纸.dwg
- 砖混住宅结构设计CAD图纸(dwg)
- 砖混住宅结构设计CAD图纸(dwg)
- 砖混住宅结构设计CAD图纸(dwg)
全部评论
评论网友评论仅友表达个人看法,并不表明本站同意其观点,不得发布违反法律法规的内容!
