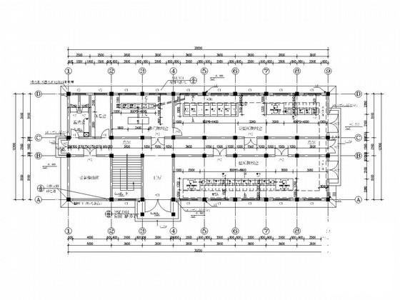
泵站工程初步设计施工CAD大样图(控制室管理用房)
- 发布时间:2021-05-03
- 评论次数:0
- 浏览次数:0
- 文件大小:1.89 MB
- 收藏次数:0
- 
								文件名称: 附件-995860985709875897889.rar 附件-995860985709875897889.rar
								泵站初步设计下载
							
						- 输入泵站综合控制室水电施工CAD图纸
- 泵站工程泵房初步设计施工CAD图纸
- 煤精仪控制室改造工程质量成本管理研究.doc
- 污水提升泵站工程施工CAD大样图
- 小型水库除险加固工程管理用房施工CAD图纸
- 2层框架结构隧道管理用房结构施工CAD大样图2020
- 5层管理用房电气施工CAD大样图(2017)
- 提水泵站配套输水工程初步设计图册2022,平面布置图,大样图,剖面图
- 物业管理中心全套电气图纸(消防控制室).
- [CAD]高速公路收费站管理用房给排水设计大样图.dwg
- [CAD]轻钢结构管理用房
- 一套泵站工程初步设计dwg格式CAD图纸(平面布置图)
- 水景工程泵房及控制室通风图纸cad
- 公园管理用房施工CAD详图纸(dwg)
- 管理用房给排水CAD施工图纸(dwg)
- 3层小区车库、管理用房建筑施工CAD图纸
- 单层小型管理用房强电施工CAD图纸
- 泵站增容改造工程副厂房施工CAD大样图
- 泵站电机层更新改造工程施工CAD大样图
- 小型轴流泵排涝泵站工程施工CAD大样图
全部评论
						
							评论网友评论仅友表达个人看法,并不表明本站同意其观点,不得发布违反法律法规的内容!
						
						
 
	              	 
	              	