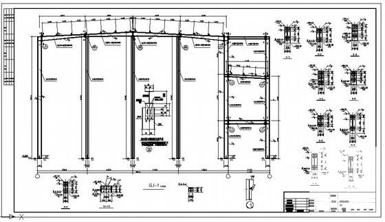
两层学校体育中心结构设计施工CAD图纸(8度抗震)
- 发布时间:2021-05-03
- 评论次数:0
- 浏览次数:0
- 文件大小:1.45 MB
- 收藏次数:0
-
文件名称:
附件-995878587097566595956.zip
体育中心设计下载
- 2层学校体育中心结构设计CAD施工图纸(dwg)(8度抗震)(独立基础)
- 两层福利中心结构设计施工CAD图纸(6度抗震)
- 地上两层框架结构学校礼堂结构设计施工CAD图纸
- 体育中心体育学校锅炉及换热站CAD施工图纸(dwg)
- 小学校舍抗震加固施工CAD图纸
- 两层框架混凝土厂房结构设计CAD施工图纸(7度抗震)
- 两层半地下车库结构设计CAD施工图纸(6度抗震).dwg
- 10米跨两层工业厂房结构设计CAD施工图纸(6度抗震)
- 两层框架学校体育馆结构设计施工CAD大样图
- [CAD]14米地上两层钢框架宿舍结构设计方案图纸(8度抗震)
- 学校两层综合楼电气CAD施工图纸
- 学校抗震加固节点构造详图纸cad
- 体育中心结构设计方案CAD施工图纸
- [CAD]3层框架结构国际学校教学楼结构设计图纸(抗震设防类别)
- 两层大厦车间局部加固结构CAD施工图纸(8度抗震)
- 8度抗震地上两层门式刚架结构车间CAD施工图纸
- 一份两层学校宿舍楼通风排烟设计CAD图纸
- 3层框架结构体育中心结构CAD施工图纸(屋面网架)(dwg)(6度抗震)
- [CAD]两层框架办公楼结构设计说明(框架抗震等级).dwg
- 一份单层框架学校大门结构CAD施工图纸(7度抗震)
全部评论
评论网友评论仅友表达个人看法,并不表明本站同意其观点,不得发布违反法律法规的内容!
