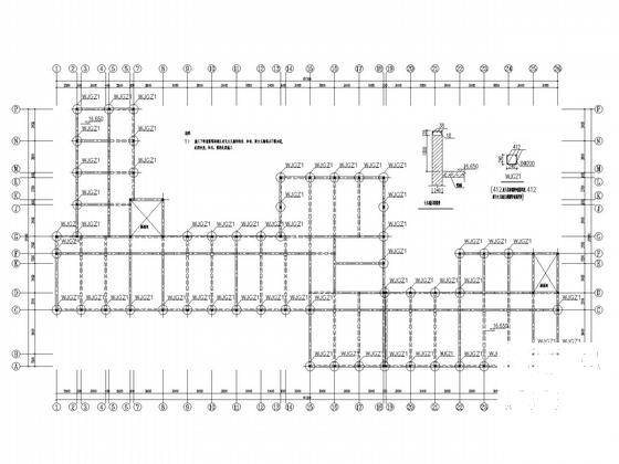
条形基础5层砖混教学楼加固改造施工CAD图纸,共7张图纸
- 发布时间:2021-05-04
- 评论次数:0
- 浏览次数:0
- 文件大小:0.43 MB
- 收藏次数:0
-
文件名称:
附件-995877790767758595856.zip
教学楼加固改造下载
- 小学条形基础砖混教学楼结构CAD施工图纸
- 3层砖混教学楼结构设计施工CAD图纸(条形基础)
- 单层砖混门卫结构施工CAD图纸(条形基础,共2张)
- 一份4层砖混教学楼加固改造设计CAD施工图纸
- [CAD]3层砖混教学楼建筑结构图纸(砌体结构条形基础)
- 砖混大门结构设计CAD施工图纸(条形基础,共2张).dwg
- 国内3层砖混小学教学楼加固CAD施工图纸
- 砖混结构住宅楼结构CAD施工图纸(6层 条形基础)
- 2层砖混结构别墅结构CAD施工图纸(条形基础)
- 一份2层条形基础砖混别墅结构CAD施工图纸
- 一份3层砖混结构别墅结构CAD施工图纸(条形基础)
- 一份砖混结构别墅结构CAD施工图纸(2层条形基础)
- 一份砖混结构别墅结构CAD施工图纸(4层条形基础)
- 一份条形基础,单层砖混门卫结构CAD施工方案图纸
- 5层砖混住宅结构设计CAD施工图纸(dwg)(条形基础)
- 砖混大门结构设计CAD施工图纸(dwg)(条形基础)
- 大门及门卫砖混结构设计CAD施工图纸(条形基础).dwg
- 砖混结构住宅结构设计CAD施工图纸(条形基础).dwg
- 6层条形基础砖混住宅楼结构设计施工CAD图纸
- 6层砖混住宅楼结构设计施工CAD图纸(条形基础)
全部评论
评论网友评论仅友表达个人看法,并不表明本站同意其观点,不得发布违反法律法规的内容!
