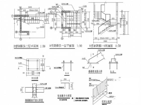
地下室加建钢爬梯建筑及结构CAD施工图纸
- 发布时间:2021-05-04
- 评论次数:0
- 浏览次数:0
- 文件大小:3.28 MB
- 收藏次数:0
-
文件名称:
附件-995877765665769759077.rar
地下室结构施工图下载
- 一份地下室加建钢爬梯建筑及结构CAD图纸
- 一份地下室加建钢爬梯建筑及结构CAD施工图纸
- 材料库钢爬梯结构CAD施工图纸(爬梯详图纸).dwg
- 材料库钢爬梯结构CAD施工图纸(dwg)
- 室外钢爬梯结构CAD施工图纸.dwg
- 钢爬梯结构节点构造CAD详图纸
- 室外钢爬梯结构CAD施工图纸(民用建筑设计)(dwg)
- 一份广场钢框架-中心支撑加建楼梯结构CAD施工图纸
- 5层广场钢框架-中心支撑加建楼梯结构CAD施工图纸(民用建筑设计)
- 结构加建楼板详图纸(CAD)
- 设计院的钢爬梯、钢栏杆结构CAD详图纸(标准大样)(dwg)
- 钢框架结构房屋屋顶加建结构CAD施工图纸(平面布置图)(dwg)
- ]厂房室外钢爬梯节点CAD详图纸(dwg)
- 烟囱钢爬梯平台节点构造CAD详图纸
- 钢屋盖爬梯大样图纸(CAD)
- 钢爬梯节点构造详图纸cad立面图
- 新加钢楼梯结构CAD施工图纸(dwg)
- 上屋面钢爬梯及检修口大样CAD图纸(dwg)
- 一份4层框架结构综合楼加建1层门刚结构加层结构CAD施工图纸(建筑图纸)
- 一份4层框架结构综合楼加建1层门刚结构加层结构CAD施工图纸(建筑图纸)
全部评论
评论网友评论仅友表达个人看法,并不表明本站同意其观点,不得发布违反法律法规的内容!
