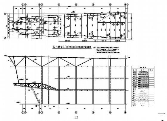
博物馆钢结构施工CAD图纸
- 发布时间:2021-05-04
- 评论次数:0
- 浏览次数:0
- 文件大小:2.23 MB
- 收藏次数:0
-
文件名称:
附件-995878777585857857577.rar
钢结构博物馆下载
- 博物馆强电施工图纸.
- 博物馆电气施工CAD图纸
- 博物馆内部GRG钢结构龙骨设计及施工探讨
- 博物馆改建钢结构拼装平台施工方案.doc
- 钢结构博物馆片区改造施工组织设计.doc
- 钢结构框架式博物馆施工组织设计.pdf
- 一份轻钢结构博物馆机动展厅改造结构CAD施工图纸
- 博物馆钢结构CAD施工图纸(dwg)(7度抗震)(二级结构安全)
- 帮博物馆钢结构设计(标志性建筑).pdf
- 博物馆强电施工图纸(电气图)()
- 3层博物馆建筑施工CAD图纸
- 多层博物馆建筑施工CAD图纸
- 4层博物馆建筑施工CAD图纸
- 2层博物馆建筑施工CAD图纸
- 博物馆空调CAD施工图纸
- 框剪结构博物馆工程钢结构施工方案(附图丰富300余页).doc
- 博物馆屋面工程施工组织设计(钢结构),平面图,剖面图
- 博物馆新馆
- 西湖博物馆
- 博物馆电气CAD图纸(甲级院设计)(dwg)
全部评论
评论网友评论仅友表达个人看法,并不表明本站同意其观点,不得发布违反法律法规的内容!
