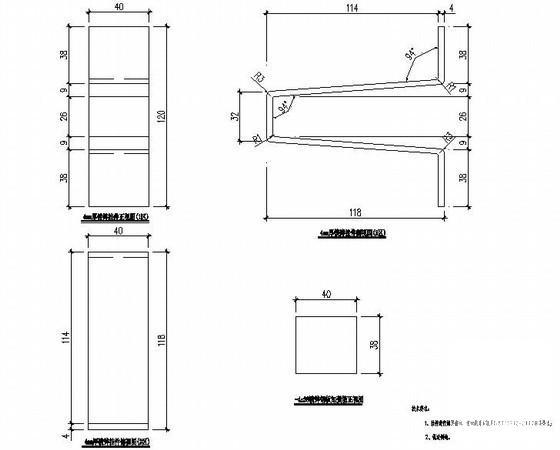
外墙干挂GRC板加固设计施工CAD图纸
- 发布时间:2021-05-04
- 评论次数:0
- 浏览次数:0
- 文件大小:0.23 MB
- 收藏次数:0
-
文件名称:
附件-995877875569885688577.rar
加固设计图纸下载
- 外墙干挂PVC板施工工法.doc
- 干挂GRC板(玻璃纤维增强水泥板)施工工艺.doc
- 外墙石材干挂施工工艺(背栓式干挂法).doc
- [CAD]干挂石材外墙窗台节点
- 外墙干挂铝合金作法CAD详图纸
- 宾馆外墙石材干挂施工方案(工程)
- 外墙干挂石材专项施工方案.doc
- 外墙干挂石材施工技术交底.doc
- 外墙干挂板材施工技术交底记录.docx
- 外墙干挂石材施工技术交底.doc
- 某高层商住楼外墙石材装饰施工工艺(干挂湿挂).doc
- 别墅外墙干挂石材排版图(全套cad图)
- 外墙干挂石材幕墙工程合同范本.doc
- 干挂石材外墙横剖节点cad
- 干挂石材外墙竖剖节点cad
- 干挂石材外墙女儿墙节点cad
- 干挂石材外墙封底竖剖节点cad
- 一份外墙干挂铝合金作法节点构造详细设计CAD图纸
- 外墙干挂石材施工组织设计方案.doc
- 外墙干挂石材设计、安装和工艺改革施工工法.doc
全部评论
评论网友评论仅友表达个人看法,并不表明本站同意其观点,不得发布违反法律法规的内容!
