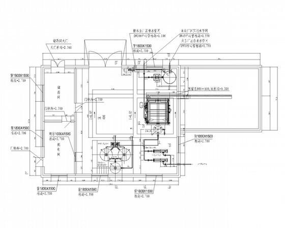
污水处理厂工艺施工设计CAD图纸(生化污泥池、曝气生物滤池、鼓风机房)
- 发布时间:2021-04-26
- 评论次数:0
- 浏览次数:0
- 文件大小:5.62 MB
- 收藏次数:0
-
文件名称:
附件-995860907875780689560.rar
污水处理厂工艺设计下载
- 城镇污水处理厂工艺全套
- 城镇污水处理厂工艺全套
- [案例]城市污水处理厂工艺CAD图纸(CASS工艺)
- [案例]污水处理厂水处理工艺设计CAD图纸(dwg格式)
- [案例]污水处理厂工艺设计CAD施工图纸
- 4万吨污水处理厂设计方案(BAF工艺)
- 污水处理厂工艺施工设计图纸()
- 污水处理厂MSBR工艺设计CAD施工图纸.dwg
- 污水处理厂MBR工艺设计施工图纸.
- [CAD]污水处理厂工艺设计流程图纸.dwg
- [CAD]污水处理厂AO工艺毕业设计方案图纸.dwg
- 10万吨污水处理厂sbr工艺设计详图纸_CAD
- 污水处理厂MSBR工艺设计全套CAD施工图纸
- CASS工艺污水处理厂成套cad设计图纸和污泥脱水间工艺图
- 一份污水处理厂MBR工艺CAD施工图纸
- 市污水处理厂工艺CAD施工方案图纸
- 污水处理厂CASS工艺总平面布置CAD图纸
- 污水处理厂(30000m3/d)SBR工艺套CAD图纸
- 污水处理厂工艺流程CAD图纸
- 污水处理厂工艺CAD施工图纸(dwg)
全部评论
评论网友评论仅友表达个人看法,并不表明本站同意其观点,不得发布违反法律法规的内容!
