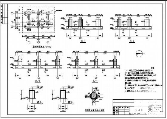
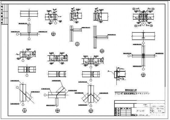
4层门式刚架废水处理钢框架建筑结构设计CAD施工图纸
- 发布时间:2021-04-26
- 评论次数:0
- 浏览次数:0
- 文件大小:0.77 MB
- 收藏次数:0
-
文件名称:
附件-995878759578778075057.rar
钢框架建筑施工图下载
- 门式刚架及钢框架结构设计说明
- 建筑钢结构设计(轻型门式刚架)
- 浅谈门式刚架及类门式刚架的结构设计.pdf
- 钢构公司厂房建筑结构CAD施工图纸(门式刚架轻型房屋)
- 门式刚架厂房结构设计CAD图纸
- 新增门式刚架结构设计CAD图纸
- 门式刚架结构单层厂房建筑施工CAD图纸
- 1层钢框架结构2层门式刚架结构药厂仓库结构CAD施工图纸
- 单层轻型门式刚架结构设计要点
- 浅谈轻型门式刚架结构设计
- 门式刚架结构设计浅析.pdf
- 门式刚架钢结构设计说明
- 门式刚架结构设计PPT(104页)
- 门式刚架仓库结构CAD图纸
- 顶层为门式刚架的多层框架钢结构设计简介.pdf
- 一份门式刚架钢构厂房结构CAD施工图纸(气楼)
- 一份门式刚架节点详细设计CAD图纸之格构式门式刚架(结构)
- 门式刚架计算实例
- 大门口雨棚结构设计CAD施工图纸(门式刚架)(dwg)
- 门式刚架厂房结构设计CAD施工图纸(独立基础).dwg
全部评论
评论网友评论仅友表达个人看法,并不表明本站同意其观点,不得发布违反法律法规的内容!
