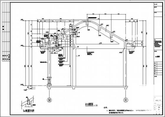
长安古建筑结构CAD图纸(总共10张)
- 发布时间:2021-05-07
- 评论次数:0
- 浏览次数:0
- 文件大小:1.01 MB
- 收藏次数:0
-
文件名称:
附件-995887770977855877079.rar
古建筑结构图纸下载
- 长安古建筑结构CAD图纸(dwg)
- 框架结构博物馆创优汇报PPT(仿古建筑,长安杯)
- 仿古建筑中式院门建筑施工CAD图纸(总共5张图纸)
- 仿古建筑公共厕所施工详图(总共9页CAD图纸)(dwg)
- 仿古建筑施工CAD图纸(结构详图).dwg
- 单层木结构仿古建筑施工CAD图纸
- 一份公园船站连廊设计施工CAD详图(总共4页图纸)(仿古建筑)
- 道家仿古建筑大殿建施图(总共9页CAD图纸)(基础配筋)(dwg)
- 多层古建筑CAD图纸(dwg)
- 框架结构古建筑大院结构CAD施工图纸
- 电梯井结构施工CAD图纸(总共6张图纸)
- 钢平台结构施工CAD图纸(总共2张图纸)
- 下室人防结构CAD详图(总共12页图纸)
- 螺旋钢梯结构CAD详图(总共6页图纸)
- 仓库下部结构CAD图纸(总共9张)(dwg)
- 矩形集水坑结构施工CAD图纸(总共2张)
- 景桥结构施工CAD图纸(总共6张)
- 大门结构施工CAD图纸(总共14张)
- 长安大学校园总图纸CAD规划图纸和总图
- 长安住宅区办公楼建筑结构CAD图纸(卫生间大样图)(dwg)
全部评论
评论网友评论仅友表达个人看法,并不表明本站同意其观点,不得发布违反法律法规的内容!
