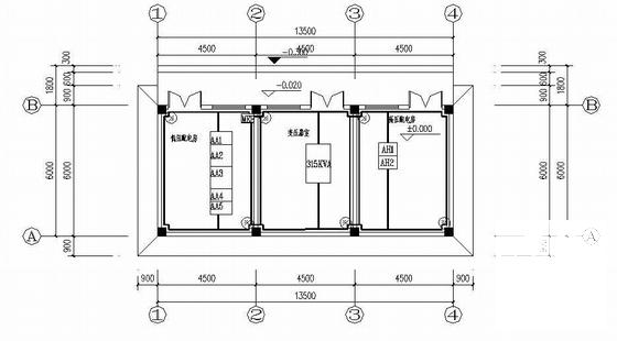
小区电房、水房及弱电外网电气设计施工CAD图纸
- 发布时间:2021-05-07
- 评论次数:0
- 浏览次数:0
- 文件大小:0.47 MB
- 收藏次数:0
- 
								文件名称: 附件-995856999987855965665.rar 附件-995856999987855965665.rar
								电气设计弱电下载
							
						- 小区电房、水房及弱电外网电气CAD施工图纸(TN-S)
- 小区弱电外网图纸(智能化).
- 一份单层砌体站房CAD施工方案图纸(建、结、电、水)
- 单层砌体站房CAD施工图纸(建、结、电、水).dwg
- 小区强弱电外网CAD图纸(低压配电)
- 小区弱电外网CAD图纸(安防设备)
- 小区弱电外网电气CAD图纸(入侵报警系统)(dwg)
- 别墅小区弱电外网CAD图纸(可视对讲)(dwg)
- [CAD]高层小区弱电外网图纸(电缆敷设).dwg
- [CAD]小区安防、弱电外网电气图纸.dwg
- 住宅小区电气弱电外网CAD图纸
- 6层住宅小区拆迁安置房电气设计施工CAD图纸
- 小区中心高压电房电气设计施工CAD图纸
- 锅炉房电施CAD施工图纸(dwg)
- [CAD]小区配电房布置及系统图纸.dwg
- [CAD]锅炉房全套图纸(水暖电图纸).dwg
- [CAD图]矿锅炉房给排水水施、电施(dwg)
- 电商物流园锅炉房电气设计_CAD
- 2层大学燃气锅炉房及开水房全套电气设计CAD图纸
- 电房平面布置CAD图纸(dwg)
全部评论
						
							评论网友评论仅友表达个人看法,并不表明本站同意其观点,不得发布违反法律法规的内容!
						
						
 
	              	 
	              	