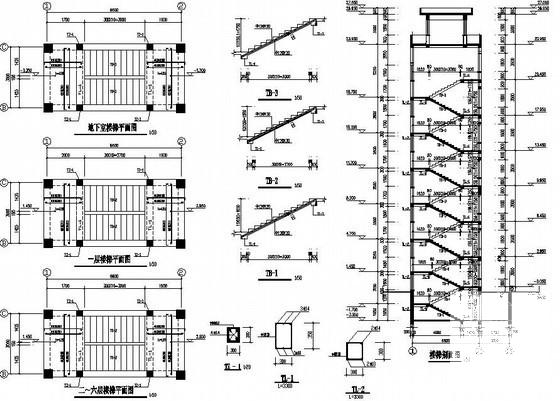
8层消防训练塔结构设计CAD施工图纸,含设计说明
- 发布时间:2021-05-08
- 评论次数:0
- 浏览次数:0
- 文件大小:0.23 MB
- 收藏次数:0
-
文件名称:
附件-995877096799995558767.rar
结构施工图设计说明下载
- 砌体结构CAD施工图纸设计说明(dwg)
- [CAD]3层别墅结构施工图纸(结构设计说明).dwg
- 小区结构CAD施工图纸.(结构设计说明).dwg
- 小学框架结构CAD施工图纸(结构设计说明).dwg
- 别墅结构CAD施工图纸(结构设计说明).dwg
- 钢结构熟料库工程施工图纸(结构设计说明).
- 天桥结构CAD施工图纸(钢结构设计说明).dwg
- 单层钢结构厂房设计CAD施工图纸(钢结构设计说明)
- 单层框架结构厂房结构设计施工图cad设计说明
- [CAD]别墅结构设计说明(钢结构设计说明).dwg
- 17层剪力墙结构住宅楼结构施工图cad结构设计说明
- 18层剪力墙结构住宅楼结构施工图cad结构设计说明
- 3层框架结构食堂结构施工图cad结构设计说明
- 3层框架结构幼儿园结构施工图CAD结构设计说明
- 16层剪力墙结构住宅楼结构施工图cad结构设计说明
- 33层剪力墙结构住宅楼结构施工图cad结构设计说明
- 20层剪力墙结构住宅楼结构施工图cad结构设计说明
- 结构设计说明.pdf
- 结构设计说明.pdf
- 结构设计说明.doc
全部评论
评论网友评论仅友表达个人看法,并不表明本站同意其观点,不得发布违反法律法规的内容!
