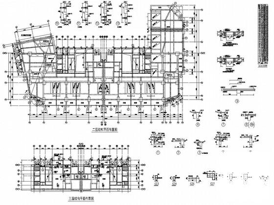
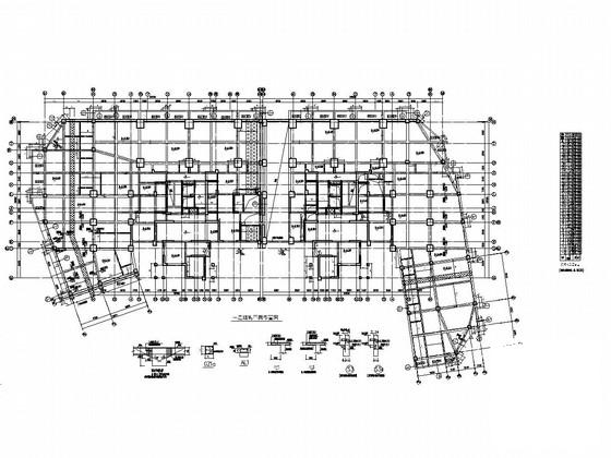
32层部分框支剪力墙结构商住楼结构施工CAD图纸
- 发布时间:2021-05-08
- 评论次数:0
- 浏览次数:0
- 文件大小:6.25 MB
- 收藏次数:0
-
文件名称:
附件-995888957885660066579.zip
部分框支剪力墙结构下载
- 部分框支剪力墙结构设计
- 10层部分框支剪力墙结构商住楼结构施工CAD图纸
- 珠江帝景住宅工程结构设计(部分框支剪力墙).pdf
- 部分框支剪力墙高层建筑结构设计.pdf
- 部分框支剪力墙高层建筑结构设计.pdf
- 住宅工程结构设计(部分框支剪力墙).pdf
- [CAD]住宅结构设计说明(部分框支剪力墙).dwg
- [CAD]部分框支剪力墙结构设计说明(桩基础).dwg
- 7层部分框支剪力墙结构住宅结施2018_CAD
- 27层部分框支剪力墙结构住宅结施2019_CAD
- 28层部分框支剪力墙职工住宅楼结构施工CAD图纸
- 地上25层部分框支剪力墙商住楼结构施工CAD图纸
- 地上12层部分框支剪力墙结构住宅楼结构施工CAD大样图
- 地上6层部分框支剪力墙结构住宅楼结构施工CAD大样图
- 10层部分框支剪力墙结构商住楼结构施工图cad布置图
- 高层建筑设计的广泛应用(部分框支剪力墙).pdf
- 框支剪力墙结构构造_CAD
- 框支-剪力墙结构剖析(PPT,75页)
- 一份部分框支剪力墙保障性住房结构CAD施工图纸
- [CAD图]部分框支剪力墙结构设计说明(dwg)(桩基础)
全部评论
评论网友评论仅友表达个人看法,并不表明本站同意其观点,不得发布违反法律法规的内容!
