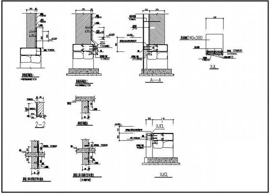
7度区校舍加固设计CAD施工图纸
- 发布时间:2021-05-09
- 评论次数:0
- 浏览次数:0
- 文件大小:0.15 MB
- 收藏次数:0
-
文件名称:
附件-995877857665996685666.rar
加固设计施工图下载
- 小学校舍抗震加固施工CAD图纸
- 3层校舍砖混加固设计CAD施工图纸
- 3层爱心学校校舍加固工程结构设计CAD施工图纸
- 校舍砖混结构加固施工CAD图纸,含设计说明
- 框架结构校舍加固施工CAD图纸(总共10张图纸)
- 校舍加固改造结构施工CAD图纸,共3张图纸
- 校舍加固结构设计说明及技术说明(CAD图纸)(dwg)
- 小学校舍抗震加固工程施工CAD大样图,含加固设计说明
- 中小学校舍抗震加固设计、施工与验收
- [CAD]校舍加固结构设计说明及技术说明.dwg
- 中小学校舍抗震加固设计要点.pdf
- 中小学校舍给排水加固工程施工组织设计
- 中小学校舍抗震加固的应用研究
- 两层砖混改框架小学校舍加固设计cad施工图纸和平面布置图
- 中小学校舍抗震加固工程实例(俞伟根),平面布置图
- [CAD]框架校舍结构设计说明.dwg
- 两层砖混改框架小学校舍加固设计施工图cad平面布置图
- 厂房加固设计CAD图纸(加固设计总说明)
- 大坝加固设计施工CAD图纸
- 外国语学校新校舍北外大门建筑施工CAD图纸
全部评论
评论网友评论仅友表达个人看法,并不表明本站同意其观点,不得发布违反法律法规的内容!
