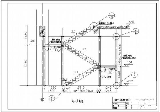
2层办公楼改造加固设计CAD施工图纸,共12张CAD施工图纸
- 发布时间:2021-05-09
- 评论次数:0
- 浏览次数:0
- 文件大小:0.13 MB
- 收藏次数:0
-
文件名称:
附件-995877860688790097957.rar
办公楼改造施工设计下载
- 某办公楼改造工程施工合同cad
- 北方办公楼改造给排水消防设计CAD施工图纸
- 一份5层办公楼电气改造设计CAD施工方案图纸
- 办公楼空调改造设计CAD施工图纸,共2张.dwg
- 办公楼空调改造施工组织设计方案.doc
- 某办公楼空调改造施工组织设计.doc
- 办公楼空调改造施工组织设计方案.doc
- 机关办公楼改造装修施工组织设计.doc
- 高层办公楼装修改造工程施工组织设计.doc
- 办公楼精装修改造工程施工组织设计.doc
- 办公楼改造装饰工程施工组织设计方案cad
- 办公楼改造工程施工组织设计方案.doc
- 办公楼装修改造施工组织设计方案.doc
- 集团办公楼改造工程施工组织设计.doc
- 办公楼改造装饰工程施工组织设计.doc
- 某综合办公楼智能化改造施工组织设计.doc
- 办公楼空调改造施工组织设计方案.doc
- 办公楼空调改造施工组织设计方案.doc
- 办公楼精装修改造工程施工组织设计.doc
- 某办公楼拆除改造施工组织设计方案
全部评论
评论网友评论仅友表达个人看法,并不表明本站同意其观点,不得发布违反法律法规的内容!
