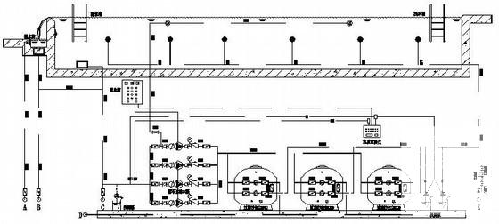
别墅室外游泳池给排水工程设计CAD图纸
- 发布时间:2021-05-09
- 评论次数:0
- 浏览次数:0
- 文件大小:0.21 MB
- 收藏次数:0
- 
								文件名称: 附件-995859707905508759578.rar 附件-995859707905508759578.rar
								别墅给排水设计图纸下载
							
						- 双拼别墅给排水设计CAD图纸
- 别墅给排水设计cad图纸
- 别墅给排水设计CAD施工图纸(dwg)
- 多层别墅给排水设计CAD施工图纸.dwg
- 河北别墅给排水cad图纸_别墅给排水消防系统
- 别墅给排水施工CAD图纸(dwg)
- 3层别墅给排水图纸(总共8页图纸).
- 一份别墅建筑空调系统设计CAD施工图纸(给排水设计)
- [CAD]420平米别墅空调、给排水设计图纸(设计说明).dwg
- 一份双拼别墅给排水CAD图纸
- 别墅游泳池给排水CAD施工图纸
- 3层别墅给排水CAD施工方案图纸
- 3层别墅给排水CAD施工图纸
- 2层别墅给排水CAD施工方案图纸
- 2层别墅给排水CAD施工方案图纸
- 3层别墅给排水CAD施工方案图纸
- 别墅给排水CAD施工图纸.dwg
- 酒店别墅建筑给排水施工CAD图纸
- 3层别墅建筑、结构、给排水施工CAD图纸
- 两层别墅给排水CAD施工图纸
全部评论
						
							评论网友评论仅友表达个人看法,并不表明本站同意其观点,不得发布违反法律法规的内容!
						
						
 
	              	