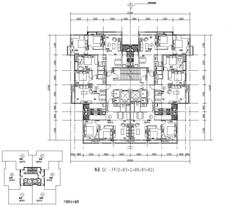
(16-20层)高层多梯多户户型CAD图纸设计
- 发布时间:2021-05-10
- 评论次数:0
- 浏览次数:0
- 文件大小:1.58 MB
- 收藏次数:0
-
文件名称:
附件-996500997088955005.dwg
高层户型设计下载
- 多套高层一梯两户户型cad平面图纸
- 多套高层一梯两户户型平面图(CAD)
- 86套小区住宅一梯多户户型平面图纸_cad
- 86套小区住宅一梯多户户型平面图(CAD)
- 60种1梯多户小高层户型平面图纸(CAD).dwg
- 多桩型复合地基设计及工程应用.pdf
- [CAD]一梯多户高层住宅平面方案
- [CAD]高层户型图纸-1梯2户户型设计图纸.dwg
- 多桩型复合地基抗液化分析.pdf
- 高层户型图纸-中海2梯4户户型设计_cad
- 多塔小高层带人防结构CAD图纸(dwg)
- 大底盘多塔复杂高层结构设计
- 19-34层二梯四户户型CAD图纸设计
- 一万多平米小高层海尔风冷式多联机和单元机相结合空调设计cad图
- 高层商业综合体通风空调系统设计施工图(建筑形式多详图多)平面图
- 塔式高层一梯两户、一梯四户户型组合平面CAD图纸(500)
- 多栋3层异形柱框架结构C型低层住宅楼结构施工CAD图纸
- 5层医院急诊楼多联机空调CAD图纸
- [CAD]塔式高层一梯八户户型图纸(标准层建筑面积)
- [CAD]塔式高层一梯十二户户型图纸(标准层建筑面积).dwg
全部评论
评论网友评论仅友表达个人看法,并不表明本站同意其观点,不得发布违反法律法规的内容!
