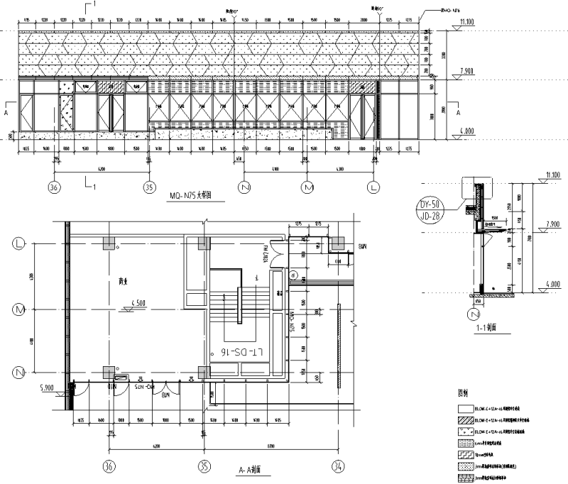
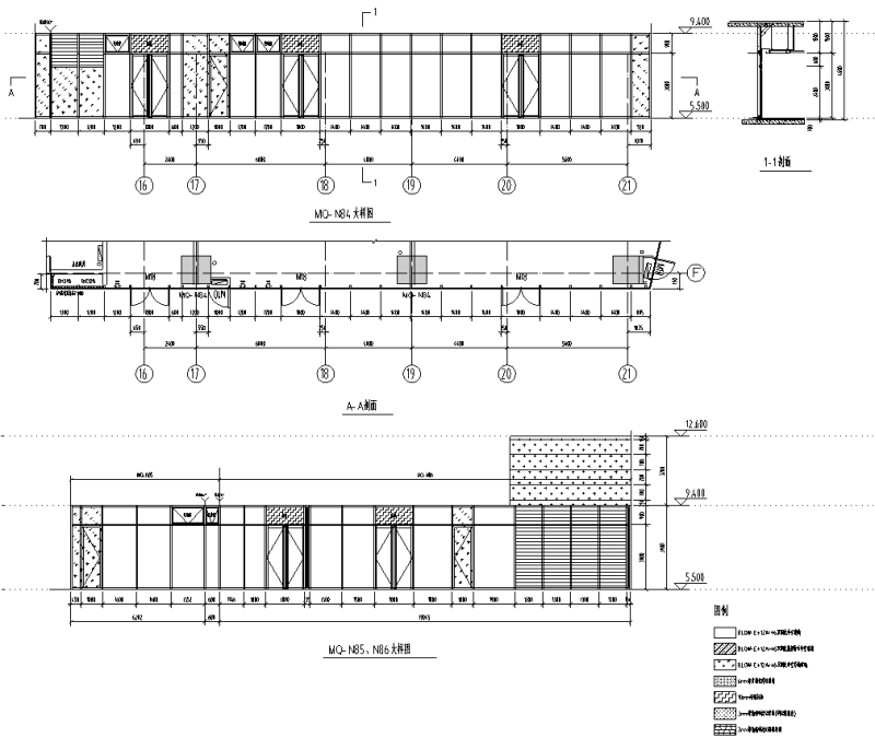
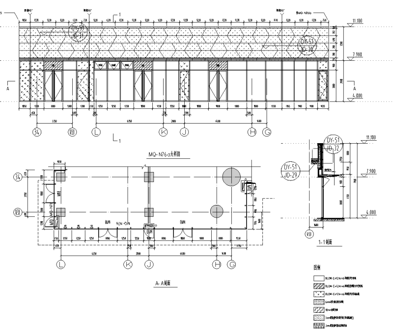
商业街2层商业幕墙施工方案大样图CAD含详细节点
- 发布时间:2021-05-10
- 评论次数:0
- 浏览次数:0
- 文件大小:15.33 MB
- 收藏次数:0
-
文件名称:
附件-996985879555685899.rar
节点大样施工方案下载
- 一份厂房幕墙CAD施工方案图纸含幕墙节点图纸(构造详图)
- 商业街2层商铺混凝土结构施工方案图纸CAD含建筑
- 石材幕墙相关详细施工节点图纸CAD
- 幕墙相关预埋件详细施工节点图纸CAD
- 一份吊挂式玻璃幕墙节点详细设计CAD图纸(大样图)
- 一份吊挂式玻璃幕墙节点详细设计CAD图纸(大样图)
- 玻璃幕墙阳台详细节点大样图纸CAD
- 商业街结构大样节点构造详图纸cad
- 135米玻璃幕墙办公建筑设计施工图(含详细节点图),平面图,大样图,剖面图
- 商业街幕墙、悬挑铝单板雨篷设计CAD施工图纸
- 某特色风情商业街建筑方案文本(含CAD),平面图
- 商业外部空间设计(商业街)任务书(含总平面图).doc
- 幕墙防雷节点大样图纸(CAD)
- 一份石材幕墙节点详细设计CAD图纸
- 广场双层幕墙节点构造详细设计CAD图纸
- 一份幕墙节点构造详细设计CAD图纸
- 大理石幕墙节点构造详细设计CAD图纸
- 一份铝板幕墙节点详细设计CAD图纸
- 一份石材幕墙节点详细设计CAD图纸
- 一份石材幕墙节点详细设计CAD图纸
全部评论
评论网友评论仅友表达个人看法,并不表明本站同意其观点,不得发布违反法律法规的内容!
