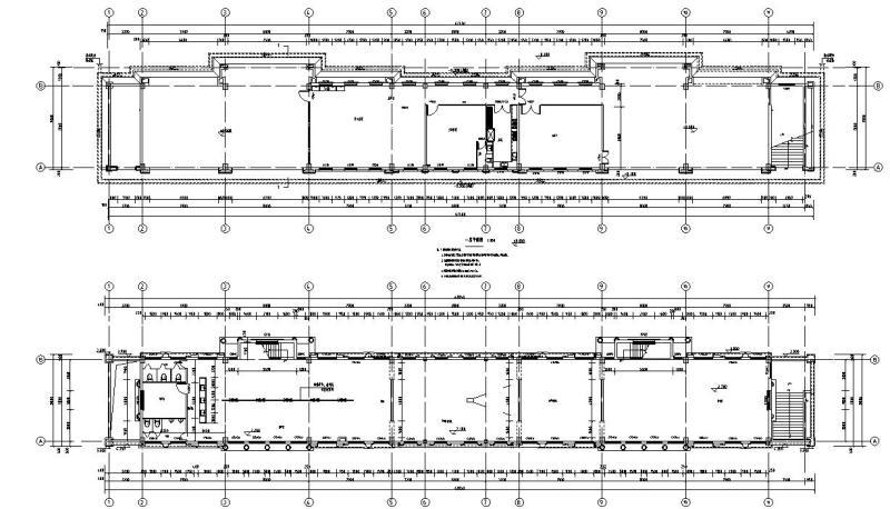
4层欧式售楼部钢结构屋面结构施工方案大样图CAD含建筑
- 发布时间:2021-05-10
- 评论次数:0
- 浏览次数:0
- 文件大小:2.98 MB
- 收藏次数:0
-
文件名称:
附件-996979080975068965.dwg
钢结构建筑施工方案下载
- 建筑施工钢结构工程施工方案.doc
- 钢结构建筑拆除方案.docx
- 建筑钢结构安全施工方案.doc
- 建筑工程钢结构专项施工方案.doc
- [二层钢结构]2层钢结构别墅建筑方案设计CAD图纸
- 建筑屋顶施工钢结构幕墙施工方案.doc
- [工业建筑]轻钢结构临建厂房结构CAD施工方案图纸
- [单层建筑]体育馆屋盖钢结构CAD施工方案图纸
- [全套图纸]伞形建筑小品钢结构CAD施工方案图纸
- [民用建筑设计]钢结构通廊结构CAD施工方案图纸
- [民用建筑设计]小区景观桥钢结构CAD施工方案图纸
- [民用建筑设计]加建房屋钢结构CAD施工方案图纸
- [民用建筑设计]钢结构别墅结构CAD施工方案图纸
- [民用建筑设计]钢结构检修平台结构CAD施工方案图纸
- 一份单层钢结构仓库建筑方案设计CAD施工图纸
- 一份原建筑增加钢结构夹层CAD施工方案图纸
- 2层钢结构排架厂房结构CAD施工方案图纸(建筑水电)
- 一份车库入口钢结构CAD施工方案图纸(多层建筑)
- 一份观光电梯建筑及钢结构CAD施工方案图纸
- 2层钢结构厂房CAD施工方案图纸(民用建筑设计)
全部评论
评论网友评论仅友表达个人看法,并不表明本站同意其观点,不得发布违反法律法规的内容!
