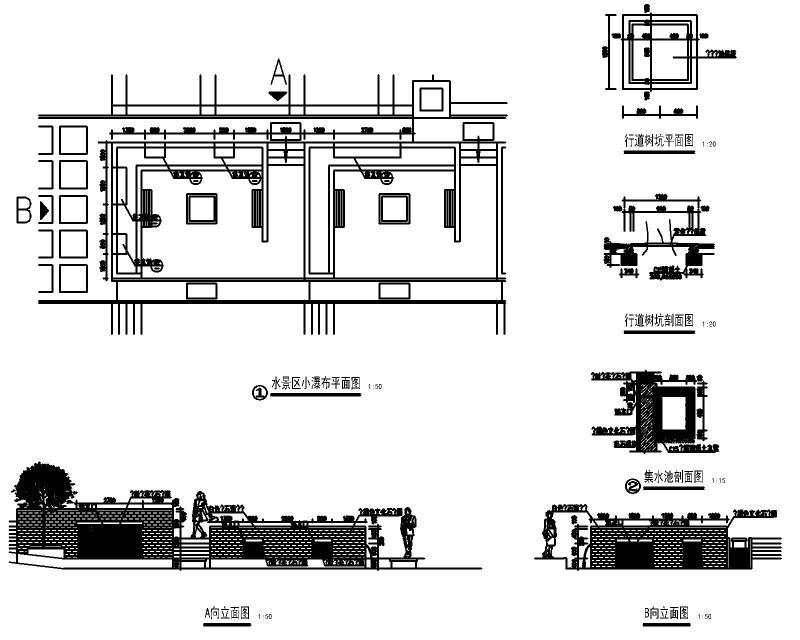
25套水景水墙水幕瀑布CAD详图纸
- 发布时间:2021-05-10
- 评论次数:0
- 浏览次数:0
- 文件大小:16.28 MB
- 收藏次数:0
-
文件名称:
附件-996979079655577859.zip
相关下载
- 水幕瀑布施工详图纸(展开立面)()
- 26套水幕瀑布CAD施工方案图纸合集
- 水幕景墙施工CAD详大样图(dwg)
- 一份瀑布水景墙施工详细设计CAD图纸
- 水幕瀑布施工dwg格式CAD图纸,含大样详图纸(立面图)
- 景观细部CAD施工图纸——水幕瀑布CAD施工图纸设计.dwg
- 24套水幕瀑布大CAD详图纸(节点CAD详图纸).dwg
- 特色瀑布水景设计CAD详图纸(dwg)
- 水幕瀑布施工dwg格式CAD图纸(展开立面)
- 水幕景墙施工dwg格式CAD详大样图(正立面图)
- 高尔夫球场跌水景观墙(水、电、建筑全套)(水景立面图)
- 一份现代瀑布水景给排水详细设计CAD图纸
- 水景区瀑布施工dwg格式CAD图纸(行道树)
- 景观小品特色水景水池喷泉跌水瀑布施工图cad平面图
- 特色组合水景施工CAD详大样图(dwg)
- 水景喷泉工程各种水型加工CAD图纸(dwg)
- 水景源水净水处理设计CAD图纸.dwg
- 叠水水景CAD节点详图纸设计
- 住宅特色水钵水景详图纸设计cad
- 跌水景墙水景(cad图)
全部评论
评论网友评论仅友表达个人看法,并不表明本站同意其观点,不得发布违反法律法规的内容!
