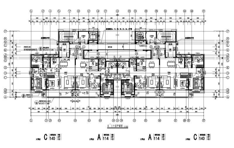
33层新中式风1梯4户140+114平米中国住宅户型CAD施工图纸
- 发布时间:2021-05-11
- 评论次数:0
- 浏览次数:0
- 文件大小:6.12 MB
- 收藏次数:0
-
文件名称:
附件-996959868778987759.dwg
住宅户型施工图下载
- 18层新中式风一梯两户132平米中国住宅户型CAD图纸设计
- 11层新中式风一梯两户142平米中国住宅户型CAD图纸设计
- 11层新中式风一梯两户128平米中国住宅户型CAD图纸设计
- 18层新中式风一梯两户140平米中国住宅户型CAD图纸设计
- 新古典风保利户型165-115-140平米中国户型CAD图纸设计
- 新古典风保利户型140-140-115平米中国户型CAD图纸设计
- 18层新中式风1梯4户124+108平米中国住宅户型CAD施工图纸
- 33层新中式风1梯4户131+98平米中国住宅户型CAD施工图纸
- 新古典风保利户型140-125-90平米中国户型图纸设计_cad平面图
- 新古典风保利户型120-120-90平米中国户型图纸设计_cad
- 新中式风住宅+商业户型专项方案.pdf
- 新亚洲风保利户型165-115-140平米中国户型cad图纸设计
- 新亚洲风保利户型165-115-140平米中国户型cad图纸设计
- 现代风保利户型165-115-140平米中国户型CAD图纸设计
- [CAD]新古典风格保利户型210平米中国户型图纸设计.dwg
- 知名企业新中式一梯两户117平米中国户型CAD图纸设计
- [CAD]现代风保利户型140-125-90平米中国户型图纸设计.dwg
- [CAD]新亚洲风保利户型140-125-90平米中国户型图纸设计.dwg
- 新亚洲风保利户型210平米中国户型图纸设计_cad平面图
- 新亚洲风保利户型120-110-90平米中国户型图纸设计_cad平面图
全部评论
评论网友评论仅友表达个人看法,并不表明本站同意其观点,不得发布违反法律法规的内容!
